Uudet käyttö- ja sopimusehdot
Päivitämme käyttö- ja sopimusehtojamme. Uudet ehdot ovat voimassa 1.5.2025 alkaen. Tutustu ehtoihin
<< Takaisin kohdesivulle


Ilmakuva 2007

Opasteet kantatiellä 68 (2 kpl) ja Vääräkosnteillä

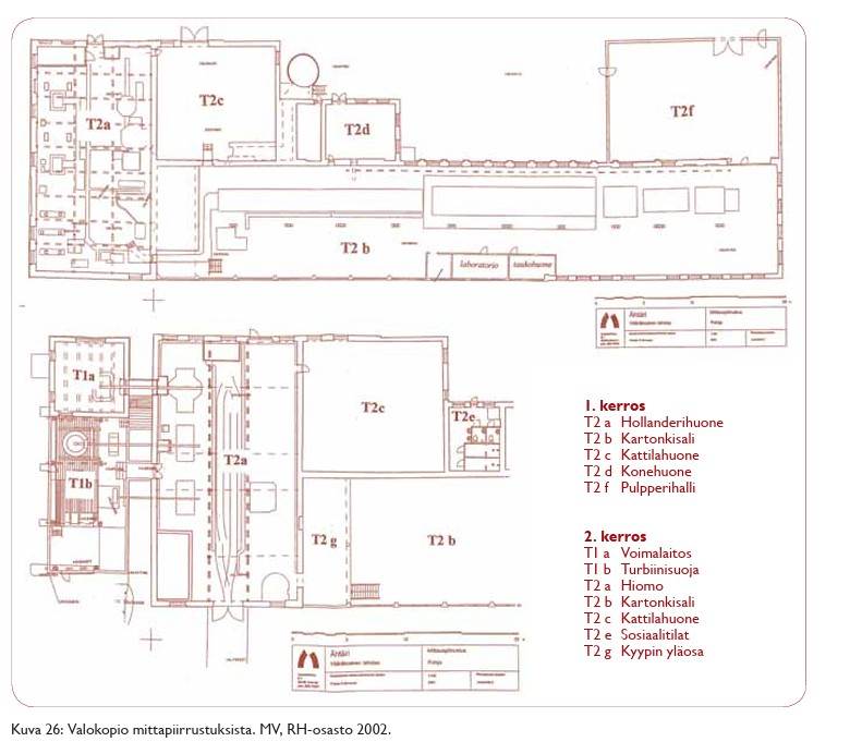
Pohjaratkaisu kartonkitehdas ja teollisuushalli

Vanha konttori

Kartonkitehtaan pääty

Kartonkitehdas

Sepän paja

Katonkitehdas

Sepän paja

Kartonkitehtaan pääty

Vanha konttori

Opaste kantatie 68

Kartonkikoneen osa

Hiomo

Kartonkikone

Sepänpaja 1. kerros

Sepän paja

Sepän paja

Vääräkoski


Ilmakuva 2007

Ranta-alue


Kartonkitehdas

Vanha konttori

Pahvi

Ranta-alue

Vanha konttori ja sepän paja

Teollisuushallin kiinteistö

Vanha konttori

Vanha konttori
<< Takaisin kohdesivulle