<< Takaisin kohdesivulle
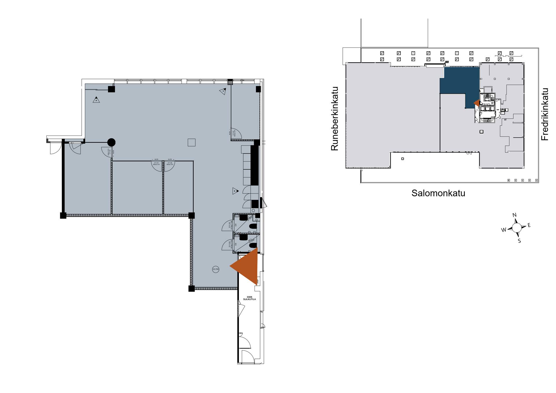
Helsingin Autotalo, 162 m², 3. krs
Helsingin Autotalo, 162 m², 3. krs
Helsingin Autotalo, 162 m², 3. krs
<< Takaisin kohdesivulle