Uudet käyttö- ja sopimusehdot
Päivitämme käyttö- ja sopimusehtojamme. Uudet ehdot ovat voimassa 1.5.2025 alkaen. Tutustu ehtoihin
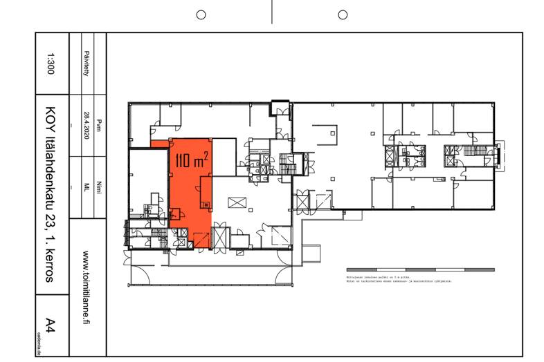
Itälahdenkatu 23 Lauttasaari, Helsinki
00210Tyyppi
Varastotila
Koko
110 m²
Vuokra
Kysy hintaa!
Vuokrataan katutason nosto-ovellinen varastotila 110 m2, johon on oma sisäänkäynti lastauslaiturilta (nosto-ovi 260 cm x 230 cm). Sisään voi kulkea myös A-rapun kautta Itälahdenkadun puolelta.
Helsingin Lauttasaaressa sijaitseva toimistorakennus on valmistunut 1970-luvulla. Sen kokonaispinta-ala on 7000 m2. Kohteessa on omia parkkipaikkoja ja lastauslaituri. Toimitilojen lähistöllä on useita lounasravintoloita.
Yhteydenotot 020 7290 710. Lisää kohteita www.premises.fi
Kohteella ei ole lain edellyttämää energiatodistusta tai energialuokka ei tiedossa.
Perustiedot
Tyyppi:
Varastotila
Sopimustyyppi:
Vuokrataan
Osoite:
Itälahdenkatu 23, 00210 Helsinki
Kaupunginosa:
Lauttasaari
Tilan koko
Kokonaispinta-ala:
110 m²
Kartta
Tietoa ilmoittajasta

CRE PREMISES
Näytä kaikki saman ilmoittajan kohteetVantaankoskentie 14
01670
VANTAA












