Uudet käyttö- ja sopimusehdot
Päivitämme käyttö- ja sopimusehtojamme. Uudet ehdot ovat voimassa 1.5.2025 alkaen. Tutustu ehtoihin
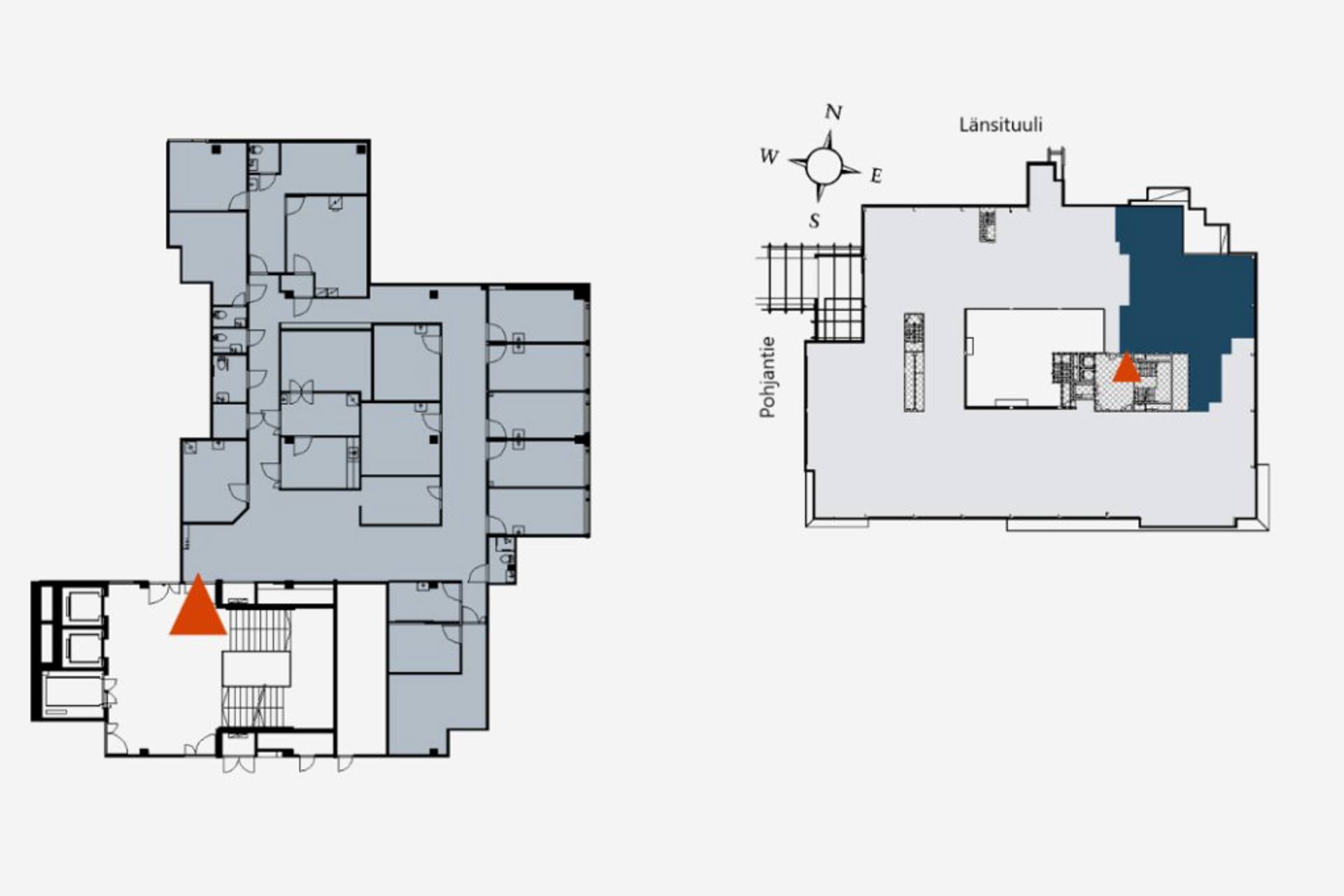
Länsituuli 1 Tapiola, Espoo
02100Tyyppi
Liiketila
Koko
241 m²
Vuokra
Kysy hintaa!
Perustiedot
Rakennustiedot
Linkit
Kartta
Ota yhteyttä
Lähetä yhteydenottopyyntö
Tietoa ilmoittajasta
Tuloskiinteistöt Oy, Helsinki
Näytä kaikki saman ilmoittajan kohteetRikhardinkatu 2 B 5
00130
Helsinki
Tuloskiinteistöt on Suomen vanhimpia kaupallisen kiinteistöalan asiantuntijayrityksiä. Tarjoamme kattavasti palveluita kiinteistöjen vuokrauksen, kaupankäynnin ja kiinteistöarviointien toimeksiannoissa, sekä tarjoamme kiinteistöliiketoiminnan konsultointipalveluita. Tuloskiinteistöt toimii koko maassa, ja teemme kauppoja ja vuokrauksia kaikkialla Suomessa. Olemme kumppanisi kaikissa toimitila- ja sijoituskiinteistöihin liittyvissä asioissa.

























































































