Uudet käyttö- ja sopimusehdot
Päivitämme käyttö- ja sopimusehtojamme. Uudet ehdot ovat voimassa 1.5.2025 alkaen. Tutustu ehtoihin
Bulevardi 6 D Kamppi, Helsinki
00120Tyyppi
Toimisto
Koko
108 m²
Vuokra
Kysy hintaa!
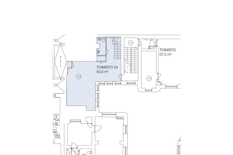
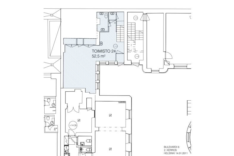
Suojaisella ja saneeratulla sisäpihalla sijaitseva, ja suoraan pihatasosta omalla sisäänkäynnillä varustettu kaksi kerroksinen noin 107,5 m2 toimitila. Molemmat kerrokset ovat noin samansuuruiset ja ne on yhdistetty portailla. Tiloissa on 2 avotilaa, 2 wc:tä, varasto ja keittiö. Tilassa on lämmöntalteenotolla varustettu koneellinen ilmanvaihto sekä erillinen jäähdytyslaitteisto.
RAKE-talon modernit tilat yhdistettynä keskeiseen sijaintiin, Klaus K:n monipuolisiin palveluihin ja kiinteistön ainutlaatuiseen historiaan tekevät rakennuksista täydellisen paikan nykyaikaiselle yritystoiminnalle. RAKE-talon omien palveluiden lisäksi kävelyetäisyydellä sijaitsevat kaikki keskustan liikkeet: tunnetut ostoskeskukset kuten Stockmann, Forum ja Kamppi. Aleksanterinkadun, Iso Roobertinkadun ja Fredrikinkadun muotiliikkeet.
Tämä A-portaan toimitila sijaitsee 4. kerroksessa, johon saavutaan hissillä pääsisäänkäynnin kautta. Toimitila käsittää 6 valoisaa huonetilaa, sekä toimistokeittiön ja laadukkaat sosiaalitilat. Toimitilan ikkunat avaavat upean näkymän Bulevardille. Tilassa on jäähdytetty koneellinen ilmastointi ja Cat 6a-tasoiset IT-valmiudet. Kaikissa tiloissa on parkettilattiat.
Kiinteistössä on vuokrattavissa neuvottelukeskus kaikilla Hotelli Klaus K:n palveluilla. Kevyen liikenteen suosijoille kiinteistöön on rakennettu erilliset suihku- ja sosiaalitilat. Huoneisto ja koko kiinteistö on saneerattu kestävän kehityksen periaatteita noudattaen ja se antaa vuokralaiselle hyvät lähtökohdat toteuttaa ympäristöämme säästävää ja kestävää kehitystä tukevaa yrityskulttuuria.
Lisätietoja numerosta 020 7290 710. Lisää kohteita osoitteessa www.premises.fi.
Kohteella ei ole lain edellyttämää energiatodistusta.
Perustiedot
Tyyppi:
Toimisto
Sopimustyyppi:
Vuokrataan
Osoite:
Bulevardi 6 D, 00120 Helsinki
Kaupunginosa:
Kamppi
Tilan koko
Kokonaispinta-ala:
108 m²
Ympäristö
Liikenneyhteydet:
RAKE-taloon on helppo tulla kävellen tai julkisilla kulkuneuvoilla, mutta myös henkilöautolla on mahdollisuus pysäköidä aivan rakennuksen viereen. Q-Park-pysäköintilaitos ja sen 600 autopaikkaa palvelee autoilijoita 80 metriä suoraan talon alapuolella. Parkkihalliin on pääsy Bulevardi 2-4:n omalla katutason hissillä.
Pääväylät lännestä Uudenmaankatua ja Bulevardia pitkin, pohjoisesta Mannerheimintietä myöten ja idästä Esplanadilta muodostavat tieverkon, jolla saavutat RAKE-talon ympäristöineen myös päivän kiihkeimpinä tunteina. Linja-autoasema, metroasemat, päärautatieasema, Etelä- ja länsisatama sekä lentoaseman kaupunkiterminaali ovat aivan lähiympäristössä.
Kartta
Tietoa ilmoittajasta

CRE PREMISES
Näytä kaikki saman ilmoittajan kohteetVantaankoskentie 14
01670
VANTAA










