Uudet käyttö- ja sopimusehdot
Päivitämme käyttö- ja sopimusehtojamme. Uudet ehdot ovat voimassa 1.5.2025 alkaen. Tutustu ehtoihin
Kiilaniityntie 10 Koskelo, Espoo
02920Tyyppi
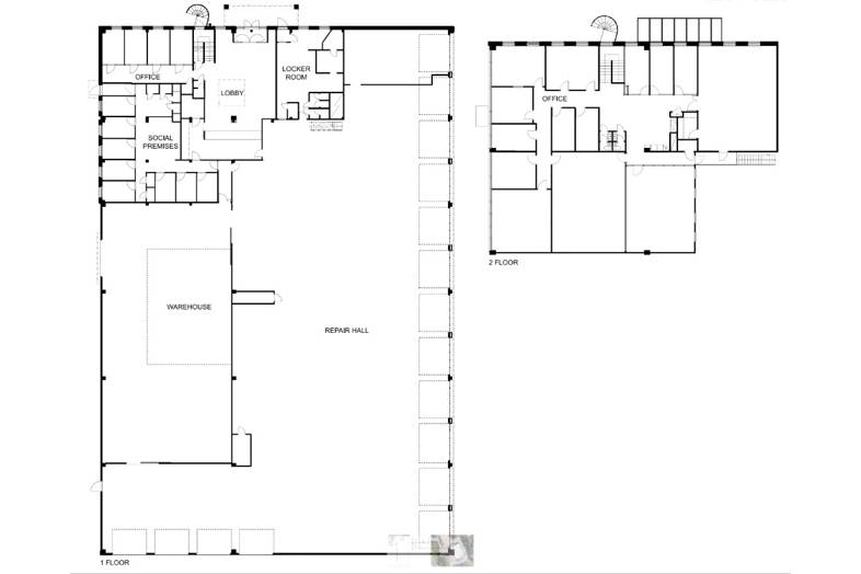
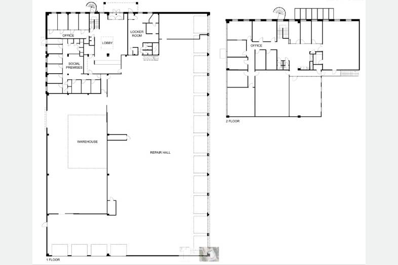
Tuotantotila
Koko
2 413 m²
Vuokra
Kysy hintaa!
Saatavilla
Heti vapaa
Perustiedot
Tilan koko
Lisätiedot
Kartta
Tietoa ilmoittajasta
Kiinteistö-Tahkola Helsinki Oy
Näytä kaikki saman ilmoittajan kohteetTurvalaaksonkaari 2
01740
Vantaa
Kiinteistötahkola Toimitilapalvelut tarjoaa kiinteistöjen omistajille palvelut yksittäisistä vuokrauksista aina kokonaisvaltaiseen manageeraukseen. Olemme vahvasti läsnä paikallisilla markkinoilla ja tunnemme kunkin alueen toimijoiden tarpeet ja erityispiirteet. Hyödynnämme myös valtakunnalliset kontaktiverkostomme niin toimitilojen tarvitsijoiden kuin tarjoajienkin etsinnässä. Tarjoamme toimitilapalvelujen lisäksi isännöintiä, asuntovuokraus- ja kiinteistönvälityspalveluita. Myynnissä olevat kohteet löydät osoitteesta: toimitilat.kauppalehti.fi/Ilmoittaja/36899






































