Uudet käyttö- ja sopimusehdot
Päivitämme käyttö- ja sopimusehtojamme. Uudet ehdot ovat voimassa 1.5.2025 alkaen. Tutustu ehtoihin
Keimolanmäentie 11 Keimola, Vantaa
01700Tyyppi
Liiketila
Koko
149 m²
Vuokra
Kysy hintaa!
Keimolan Talliosakkeelta monikäyttöinen ja edustava liiketila 3. Vuokrataan vain yritysasiakkaille – vuokraan lisätään ALV 25,5%.
KOY Keimolan Talliosake
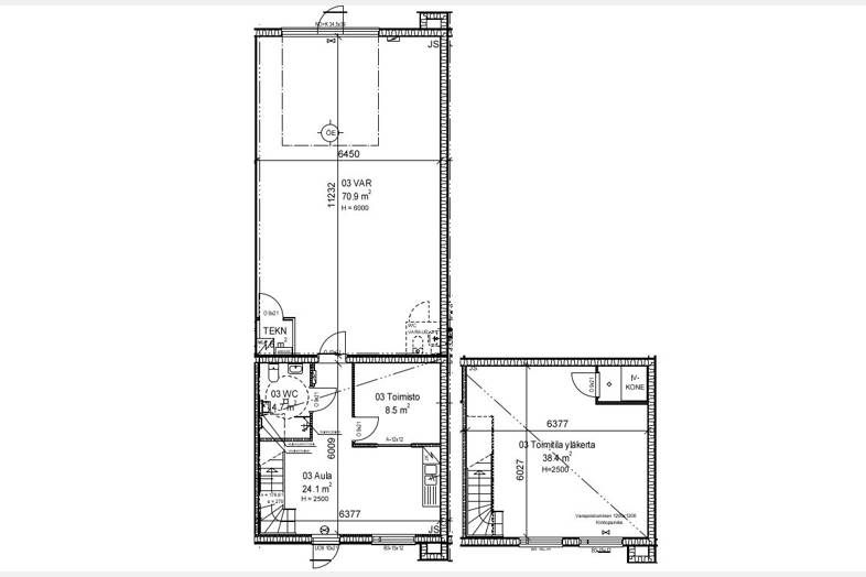
Liiketila käsittää katutasossa sijaitsevan toimiston, taukotilan, keittiön ja suihkullisen wc-tilan, yhteensä n. 39 m² sekä varastotilan 71 m². Toisessa kerroksessa tilava 39 m²:n toimisto. Tilan lattiapinta-ala on 110 m² ja toimistokerroksen 39 m². Yhteispinta-ala 149 m².
Tämä kokonaisuus takaa tulevalle toiminnalle käytännölliset ja viihtyisät puitteet. Huom. hallissa erillinen käsienpesuallas ja hana.
Tila on sähkölämmitteinen. Vuokralainen tekee tilaan oman sähkösopimuksen. Vesi- ja sähkömaksu kulutuksen mukaan. Vakuus kahden kuukauden vuokraa vastaava määrä. Haetaan pitkäaikaista vuokralaista. Luottotiedot tarkistetaan.
Käyttötarkoitusesimerkkejä:
- varastotila
- toimitila
- toimistotila
- show room
Tila ei sovellu autokorjaamoksi eikä autopesulaksi.
Vuokra: 2500 € / kk
Perustiedot
Tyyppi:
Liiketila
Sopimustyyppi:
Vuokrataan
Osoite:
Keimolanmäentie 11, 01700 Vantaa
Kaupunginosa:
Keimola
Tilan koko
Kokonaispinta-ala:
149 m²
Kartta
Tietoa ilmoittajasta
Talliosake
Näytä kaikki saman ilmoittajan kohteetÄyritie 8 D
01510
Vantaa








































