Uudet käyttö- ja sopimusehdot
Päivitämme käyttö- ja sopimusehtojamme. Uudet ehdot ovat voimassa 1.5.2025 alkaen. Tutustu ehtoihin
Keimolanmäentie 11 Keimola, Vantaa
01700Tyyppi
Varastotila
Koko
29 m²
Vuokra
Kysy hintaa!
Keimolan Talliosakkeelta monikäyttöinen varasto, autotalli, harrastetila 5. Tilassa käsienpesuallas sekä vedenlämmitin. Moottoroitu nosto-ovi erillisellä käyntiovella.
KOY Keimolan Talliosake 3
LOPPUVUODEN VUOKRAT 0€. Kampanja koskee 23.10.-31.12.2025 välisenä aikana solmittuja uusia vuokrasopimuksia.
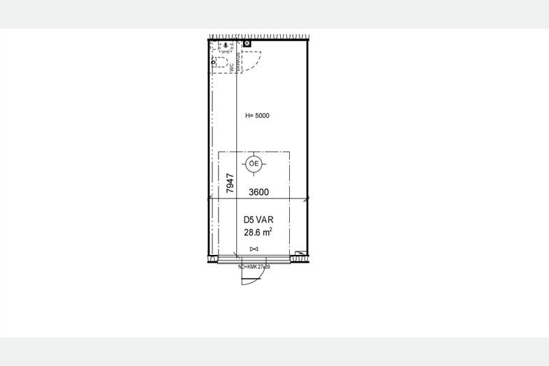
Autolla sisään ajettava tila. Tilamitat: 7,94 (Pituus) 3,60 (Leveys) 5,00 (Korkeus). Ovimitat: 2,70 (Leveys) 3,90 (Korkeus).
Käyttötarkoitusesimerkkejä: - toimitila - varastotila - yrityksen työtarvikevarasto / kalustovarasto - kimppatalli - harrastetila - bändikämppä - autotalli - moottoripyörätalli - mönkijätalli. Tila ei sovellu autokorjaamoksi eikä autopesulaksi.
Tila on sähkölämmitteinen. Vuokralainen tekee tilaan oman sähkösopimuksen. Vesi- ja sähkömaksu kulutuksen mukaan. Vakuus kahden kuukauden vuokraa vastaava määrä. Haetaan pitkäaikaista vuokralaista. Yritysasiakkaille vuokraan lisätään alv 25,5%. Luottotiedot tarkistetaan.
Talliosake tuottaa joustavasti muunneltavia hallitiloja ympäri Suomen, joita yritykset ja yksityishenkilöt käyttävät tukikohtinaan erilaisille toiminnoille: yritys- ja liiketoimintaan, varastointiin sekä harrastuksiin.
Vuokra: 495 € / kk
Perustiedot
Tyyppi:
Varastotila
Sopimustyyppi:
Vuokrataan
Osoite:
Keimolanmäentie 11, 01700 Vantaa
Kaupunginosa:
Keimola
Tilan koko
Kokonaispinta-ala:
29 m²
Kartta
Tietoa ilmoittajasta
Talliosake
Näytä kaikki saman ilmoittajan kohteetÄyritie 8 D
01510
Vantaa




















