Uudet käyttö- ja sopimusehdot
Päivitämme käyttö- ja sopimusehtojamme. Uudet ehdot ovat voimassa 1.5.2025 alkaen. Tutustu ehtoihin
Kaisaniemenkatu 13 Kaisaniemi, Helsinki
00100Tyyppi
Toimisto
Koko
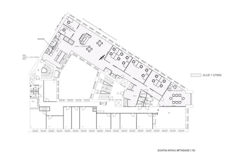
275 m²
Kerros
6 / 8
Vuokra
Kysy hintaa!
Huoneisiin jaettu toimistotila hyvällä paikalla Kaisaniemessä kaikkien julkisten kulkuvälineiden lähellä. Tila on nykyisellään koppikonttoria, mutta pohjaratkaisu joustaa vuokalaisen tarpeet ja toiveet huomioiden, esim. pohjakuvassa kuvatulla tavalla. Huom. Sisäkuvat ovat kuvia aiemmista tilaratkaisuista. Ota yhteyttä ja sovi esittely, vuokrauspalvelumme on tilanhakijoille maksuton.
Arkkitehti Yrjö Lindgrenin suunnittelema Kaisaniemenkatu 13 on 1920-luvulla valmistunut näyttävä punatiilirakennus, jota voidaan pitää Kaisaniemen maamerkkirakennuksena. Keskeisen sijaintinsa vuoksi kiinteistöä palvelee lähistön palvelut Kluuvissa sekä Rautatientorilla sekä välittömät julkisen liikenteen yhteydet metrosta ja bussista junaan. Ydinkeskustan tavoittaa kävellen parissa minuutissa.
Perustiedot
Tyyppi:
Toimisto
Sopimustyyppi:
Vuokrataan
Osoite:
Kaisaniemenkatu 13, 00100 Helsinki
Kaupunginosa:
Kaisaniemi
Tilan koko
Kokonaispinta-ala:
275 m²
Rakennustiedot
Energialuokka:
Ei lain edellyttämää energiatodistusta
Lisätiedot
Kerros:
6 / 8
Muita tietoja:
Katso lisää kohteita kotisivujemme www.senaatinnotariaatti.fi hakukoneesta, sivustolta löytyy myös kohteita joita ei ole yleisessä jakelussa. Tai soita meille suoraan puh. 09 7745 100 ja kerro tarkemmin tilatarpeistanne, me löydämme teille parhaan mahdollisen tarjolla olevan toimitilaratkaisun.
Ympäristö
Liikenneyhteydet:
Kaikki vieressä - metro, raitiovaunut, juna bussit.
Dokumentit
Kartta
Tietoa ilmoittajasta

Senaatin Notariaatti Oy LKV
Näytä kaikki saman ilmoittajan kohteetLämmittäjänkatu 4 A
00880
HELSINKI




















