Uudet käyttö- ja sopimusehdot
Päivitämme käyttö- ja sopimusehtojamme. Uudet ehdot ovat voimassa 1.5.2025 alkaen. Tutustu ehtoihin
Juvantasku 5 Juvanmalmi, Espoo
02920Tyyppi
Tuotantotila
Koko
472 m²
Kerros
1
Myyntihinta
580 000 €
Saatavilla
Heti vapaa
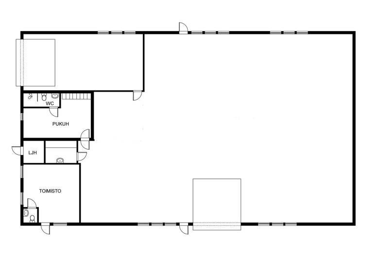
Myytävänä monikäyttöinen teollisuusvarasto- ja tuotantokäyttöön soveltuva tila, loistavien yhteyksien varrelta Espoon Juvanmalmilta. Myytävä 472 m2 tila sijaitsee hallirakennuksen päädyssä, josta löytyy yhteensä 3 lohkoa. Koko kiinteistön koko on 996 m2 ja se sijaitsee 2651 m2 tontilla, joka tarjoaa runsaat piha-alueet.
Tehokas ja selkeänmuotoinen varasto-ja tuotantotila on itsessään vapaakorkeudeltaan 6 metriä mahdollistaen monenlaisen toiminnan. Tilasta löytyy 2 kpl nosto-ovia, joista toinen on 5 metriä korkea helpottaen kaikkea tavarankuljettamista ja logistiikkaa. Tilasta löytyy myös erillinen huolto, työskentely tai varastointitilaksi soveltuva matalampi hallitila omalla nosto-ovellaan sekä toimistoksi tai vastaanottotilaksi soveltuva huone ensimmäisestä kerroksesta. Tilaan on rakennettu myös parviratkaisu joka helpottaa tavaroiden varastoimista kakkoskerroksessa. Toisesta kerroksesta löytyy myös hyvin toimistoksi tai neuvottelutilaksi soveltuvia huoneratkaisuja. Tilaa 2-kerroksessa on yhteensä 111m2, jotka eivät kuulu mukaan lattiapinta-alaan. Tilasta löytyy myös runsas sähkökapasiteetti, koneellinen ilmanvaihto lämmöntalteenotolla sekä lattiakaivot erilaisia tuotantotoimintoja varten.
Kohde sijaitsee loistavien kulkuyhteyksien varrella Espoon Juvanmalmilla. Kiinteistöltä on vain minuutin matka Kehä III:lle, joka mahdollistaa sujuvat yhteydet ympäri pääkaupunkiseutua omalla autolla. Kohteen edustalta löytyy myös bussipysäkki josta kulkevat esimerkiksi linjat 521k ja 582v tarjoten sujuvat yhteydet aina Leppävaaraan saakka. Noin kilometrin päästä löytyy myös pysäkki josta suora yhteys Helsingin keskustaan saakka.
Perustiedot
Tyyppi:
Tuotantotila
Sopimustyyppi:
Myydään
Osoite:
Juvantasku 5, 02920 Espoo
Kaupunginosa:
Juvanmalmi
Velaton hinta:
580 000 €
Myyntihinta:
580 000 €
Rakennustiedot
Rakennusvuosi:
2006
Lisätiedot
Saatavilla:
Heti vapaa
Kerros:
1
Ympäristö
Pysäköinti:
Kiinteistön piha-alueella noin 25 pysäköintipaikkaa tilalle.
Liikenneyhteydet:
Bussipysäkki lähellä ja sujuvat yhteydet omalla autolla
Kiinteistöltä on vain minuutin matka Kehä III:lle, joka mahdollistaa sujuvat yhteydet ympäri pääkaupunkiseutua omalla autolla. Kohteen edustalta löytyy myös bussipysäkki josta kulkevat esimerkiksi linjat 521k ja 582v tarjoten sujuvat yhteydet aina Leppävaaraan saakka. Noin kilometrin päästä löytyy myös pysäkki josta suora yhteys Helsingin keskustaan saakka.
Kartta
Tietoa ilmoittajasta
MAP Tilat Oy
Näytä kaikki saman ilmoittajan kohteetEnergiakuja 3
00180
Helsinki




















