Uudet käyttö- ja sopimusehdot
Päivitämme käyttö- ja sopimusehtojamme. Uudet ehdot ovat voimassa 1.5.2025 alkaen. Tutustu ehtoihin
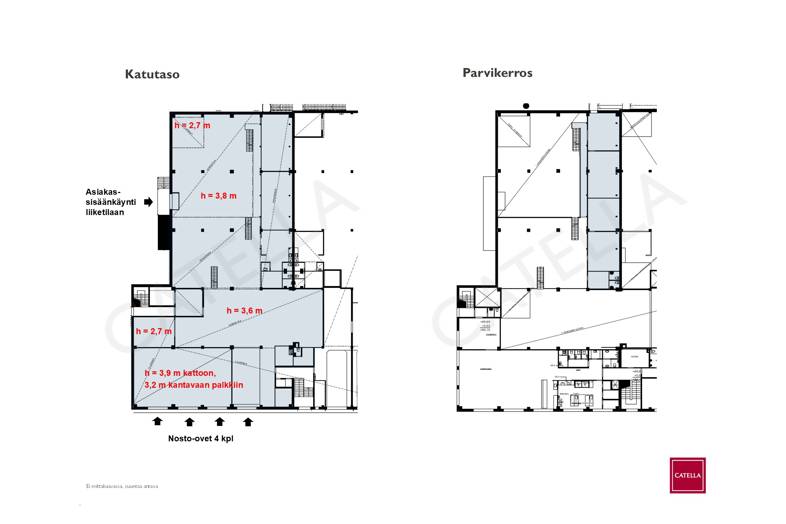
Vuokrataan noin 1.130 m2 liike- ja varastotila Nekalasta. Pinta-alasta parvikerroksen toimistotilaa noin 180 m2.
Tilan vapaakorkeus vaihtelee välillä 2,7 - 3,9 m.
Nosto-ovet 4 kpl maanpinnan tasossa Viinikankadun puolella. Lastausalueen ja varastotilan välillä korkeusero, jossa nostopöydät. Nosto-ovien leveys noin 3,4 m ja korkeus 3,5 m.
Asiakkaille pysäköintipaikkoja tilan edessä. Mahdollisuus vuokrata työntekijöille pysäköintipaikkoja kiinteistön piha-alueelta.
Erinomainen sijainti Nekalassa Tampereen keskustan läheisyydessä. Tampere - Helsinki moottoritien liittymään matkaa vain noin 500 m.
Kysy lisää!
Perustiedot
Tyyppi:
Muu
Sopimustyyppi:
Vuokrataan
Osoite:
Viinikankatu 49, 33800 Tampere
Kartta
Tietoa ilmoittajasta

Catella Property Oy, Tampere
Näytä kaikki saman ilmoittajan kohteetHämeenkatu 13 b
33100
TAMPERE
























