Uudet käyttö- ja sopimusehdot
Päivitämme käyttö- ja sopimusehtojamme. Uudet ehdot ovat voimassa 1.5.2025 alkaen. Tutustu ehtoihin
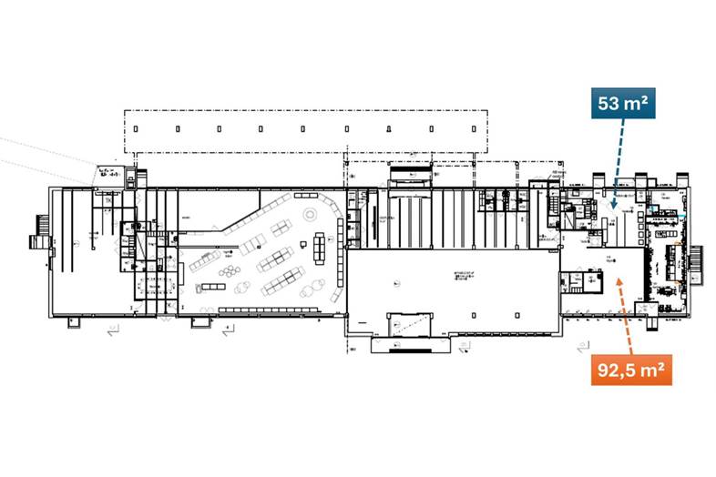
Puijonkatu 45 Toimitila 53 M² Keskusta, Kuopio
70300Tyyppi
Toimisto
Koko
53 m²
Vuokra
Kysy hintaa!
Liiketila & Toimistotila
Liiketila, myymälätila tai toimistotila asema-aukiolla
Linjuri kiinteistöllä asema-aukion puolella on vapaana n. 53 neliön liikehuoneisto, joka sopii hyvin asiakaspalveluun ja myymälätilaksi.
Hyvinvointipalveluille, fysioterapiaan, kauneudenhoitoon ja erilaisiin asiakkaan vastaanottopalveluihin tilat soveltuvat erittäin hyvin.
Tilaratkaisu sopii hyvin myös asiantuntijatyöhön toimistotilaksi ja fasiliteetit ovat valmiina. Ikkunat ovat idän suuntaan, joten aurinko ei paista sisätilaan häiritsevästi.
Hyvällä liikeidealla ja ennakkosuunnittelulla liiketilaan voidaan toteuttaa ravintola-/pikaruokapalvelulle toimitilaratkaisu.
Liikehuoneistossa on valmiina mm:
koneellinen ilmanvaihto
ilmastointi
hyvä valaistus
tasokaslattia
kuituyhteys kiinteistölle
kaksi sisäänkäyntiä
minikeittiö
loungetila
sosiaalitilat
siivouskomero
hälytinvalmius,
näkyvät valomainospaikat
Kiinteistö ja sijainti
Linjuri kiinteistö on saneerattu ja päivitetty nykyaikaan, joten tilat ovat kunnossa ja terveet. Sijainti on Puijonkadun pohjoispäässä ja kiinteistölle on vaivattomat kulkuyhteydet ja Matkakeskus on samalla aukiolla.
Parkkipaikat ovat kiinteistöllä ja tolppapaikkoja on saatavilla. Autolla pääsee käyntioven ja lastauskäytävän eteen. Tila on muuttovalmiina.
Ota yhteyttä ja puidaan lisää!
Perustiedot
Tyyppi:
Toimisto, Liiketila, Muu
Sopimustyyppi:
Vuokrataan
Osoite:
Puijonkatu 45 Toimitila 53 M², 70300 Kuopio
Kaupunginosa:
Keskusta
Tilan koko
Kokonaispinta-ala:
53 m²
Tilan jakautuminen tilatyyppien mukaan
| Tilatyypit | Min m² | Max m² | €/m²/kk |
|---|---|---|---|
| Toimisto | 53 | ||
| Liiketila | 53 | ||
| Muu | 53 |
Kartta
Tietoa ilmoittajasta
LogisTila Oy LKV
Näytä kaikki saman ilmoittajan kohteetKauppakatu 14
33210
Tampere












