Uudet käyttö- ja sopimusehdot
Päivitämme käyttö- ja sopimusehtojamme. Uudet ehdot ovat voimassa 1.5.2025 alkaen. Tutustu ehtoihin
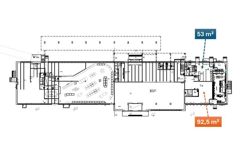
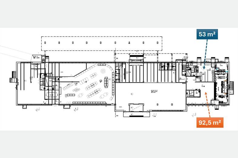
Puijonkatu 45 Liiketila 92 M² Keskusta, Kuopio
70300Tyyppi
Liiketila
Koko
92 m²
Vuokra
Kysy hintaa!
Liiketila & Myymälä
Näkyvällä paikalla liiketila @ Puijonkatu 45
Linjuri kiinteistöllä Puijonkadun varrella on vapaana n. 92 neliön liikehuoneisto, joka sopii hyvin asiakaspalveluun ja myymälätilaksi.
Aiemmin liiketilassa on toiminut kukka- ja lahjatavarakauppa. Liikehuoneisto taipuu moneen erilaiseen käyttötarkoitukseen.
Hyvällä liikeidealla ja ennakkosuunnittelulla liiketilaan voidaan toteuttaa WOLT-tyyppiselle pikaruokapalvelulle toimitilaratkaisu.
Liikehuoneistossa on valmiina mm:
koneellinen ilmanvaihto
ilmastointi
hyvä valaistus
tasokaslattia
kaksi sisäänkäyntiä
lastauskäytävä kiinteistön toiselta puolelta
minikeittiö
kylmiöhuone
loungetila
sosiaalitilat
siivouskomero
hälytinvalmius,
näkyvät valomainospaikat
Kiinteistö ja sijainti
Linjuri kiinteistö on saneerattu ja päivitetty nykyaikaan, joten tilat ovat kunnossa ja terveet. Sijainti on Puijonkadun varrella, joka on Kuopion yksi tärkeimmistä pääkaduista keskustan alueella. Kiinteistölle on vaivattomat kulkuyhteydet ja Matkakeskus on samalla alueella.
Parkkipaikat ovat kiinteistöllä ja tolppapaikkoja on saatavilla. Autolla pääsee käyntioven ja lastauskäytävän eteen. Tila on muuttovalmiina.
Ota yhteyttä ja puidaan lisää!
Perustiedot
Tyyppi:
Liiketila, Muu
Sopimustyyppi:
Vuokrataan
Osoite:
Puijonkatu 45 Liiketila 92 M², 70300 Kuopio
Kaupunginosa:
Keskusta
Tilan koko
Kokonaispinta-ala:
92 m²
Tilan jakautuminen tilatyyppien mukaan
| Tilatyypit | Min m² | Max m² | €/m²/kk |
|---|---|---|---|
| Liiketila | 92 | ||
| Muu | 92 |
Kartta
Tietoa ilmoittajasta
LogisTila Oy LKV
Näytä kaikki saman ilmoittajan kohteetKauppakatu 14
33210
Tampere












