Uudet käyttö- ja sopimusehdot
Päivitämme käyttö- ja sopimusehtojamme. Uudet ehdot ovat voimassa 1.5.2025 alkaen. Tutustu ehtoihin
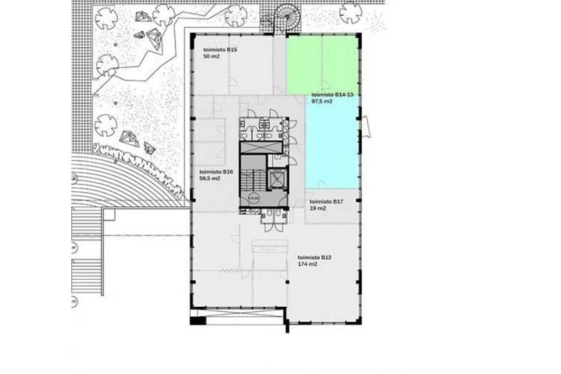
Vuokrattavana 97,5 m² toimistotila ensimmäisestä kerroksesta. Tilaan kuuluu B13 ja B14 tilat.
Kiinteistö Oy Turun Pakkarinpuisto sijaitsee komealla paikalla Veistämönaukiolla Aurajoen suunnalla. Vuonna 1996 valmistunut kiinteistö tunnettiin aiemmin nimellä WTC Turku. Kahdesta toimistotornista koostuva kohde tarjoaa modernit, mutta arvokkaat tilat ja palvelut niin isolle kuin pienellekin käyttäjälle.
Talossa on aulapalvelu ja henkilöstöravintola sekä yhteiskäytössä olevia neuvottelutiloja.
Oma pysäköintihalli ja hyvät julkiset liikenneyhteydet takaavat helpon pääsyn kiinteistöön.
Kysy lisätietoja ja sovitaan tilojen esittely!
Perustiedot
Tyyppi:
Toimisto
Sopimustyyppi:
Vuokrataan
Osoite:
Veistämönaukio 1-3, 20100 Turku
Tilan koko
Kokonaispinta-ala:
98 m²
Rakennustiedot
Kiinteistön nimi:
Turun Pakkarinpuisto
Rakennusvuosi:
1996
Tietoa ilmoittajasta
Hausala Oy
Näytä kaikki saman ilmoittajan kohteetErkkilänkatu 11
33100
TAMPERE












