Uudet käyttö- ja sopimusehdot
Päivitämme käyttö- ja sopimusehtojamme. Uudet ehdot ovat voimassa 1.5.2025 alkaen. Tutustu ehtoihin
Erottajankatu 15 Keskusta, Helsinki
00130Tyyppi
Muu
Koko
557 m²
Kerros
2 / 7
Vuokra
Kysy hintaa!
Persoonallinen 557 m² palvelutila- / toimistokokonaisuus vapaana Erottajankadulla, aivan Helsingin ytimessä.
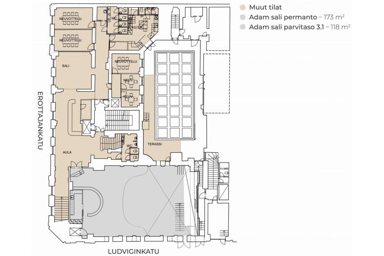
Tämä tila hurmaa näyttävällä salilla, jossa sekä permanto että parvi. Lisäksi tilasta löytyy tyylikäs aula, neuvottelutiloja, keittiö ja wc-tilat. Tila muuntautuu moneksi ja toimiikin niin tapahtumissa, koulutuksissa tai edustuskäyttöissä.
Tilat sopivat erilaisille palvelukonsepteille.
Tila on muotoiltavissa erilaisiin sisustustarpeisiin pitäen sisällään monipuolisesti vaihtoehtoja avokonttorista co-working-tiloihin tai vetäytymiseen.
Erottaja 15 tarjoaa valikoiman vapaana olevia toimitiloja, jotka sopivat niin pienille kuin suurille yrityksille. Vapaana on tilaratkaisuja huonekokonaisuuden tai avaran avotoimiston muodossa, jotka kaikki heijastavat rakennuksen historiallista eleganssia modernilla twistillä. Täällä yhdistyvät ainutlaatuisesti viihtyisyys ja toiminnallisuus, tarjoten yrityksellesi arvoisensa osoitteen Helsingin sydämessä. Valitse Erottaja 15, ja anna yrityksesi kukoistaa historiallisen arvokkaassa ympäristössä.
Erottaja 15 on todellinen toimistokomistus Helsingin arvostetuimmassa osoitteessa. Rakennuksen ulkokuori henkii vanhan ajan glamouria ja klassista eleganssia, mutta sen tyylikkäät ja korkeat sisätilat ovat täydelliset nykyaikaiseen toimistotyöskentelyyn. Eri aikakausien kerrostumat näkyvät niin rakennuksen julkisivussa kuin sisätiloissa; joka kerros huokuu hohdokkuutta omalla ainutlaatuisella tavallaan.
Erottaja15 on historiallinen arvokiinteistö Helsingin ydinkeskustassa. Pääsisäänkäynti sijaitsee näyttävästi Erottajankadun ja Ludvigin kadun kulmassa. Keskustan kattavat palvelut ja lukuisat lounasravintolat ovat kävelyetäisyydellä. Julkiset liikenneyhteydet ovat erinomaiset ja Erottajan pysäköintihallin nousu katutasolle löytyy aivan kiinteistön vierestä.
Perustiedot
Tyyppi:
Muu
Sopimustyyppi:
Vuokrataan
Osoite:
Erottajankatu 15, 00130 Helsinki
Kaupunginosa:
Keskusta
Tilan koko
Kokonaispinta-ala:
557 m²
Rakennustiedot
Rakennusvuosi:
1886
Energialuokka:
Ei lain edellyttämää energiatodistusta
Lisätiedot
Kerros:
2 / 7
Kartta
Tietoa ilmoittajasta
ScanReal Oy LKV
Näytä kaikki saman ilmoittajan kohteetOpus Business Park, Hitsaajankatu 24
00810
Helsinki














