Uudet käyttö- ja sopimusehdot
Päivitämme käyttö- ja sopimusehtojamme. Uudet ehdot ovat voimassa 1.5.2025 alkaen. Tutustu ehtoihin
Sinimäentie 10 Sinimäki, Espoo
02630Tyyppi
Varastotila
Koko
29 - 96 m²
Vuokra
10 €/m²/kk
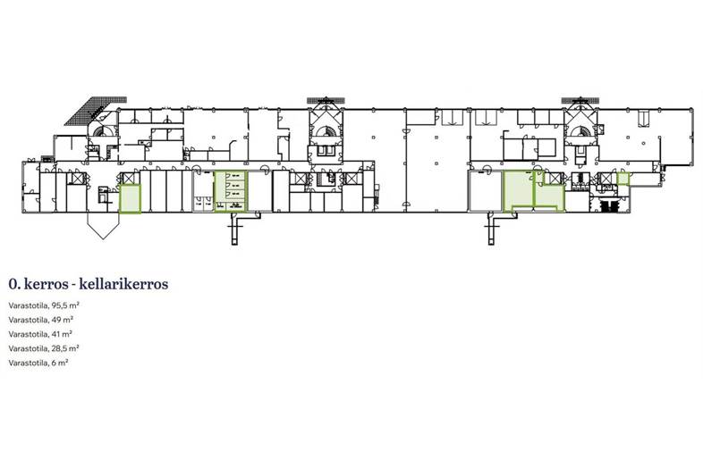
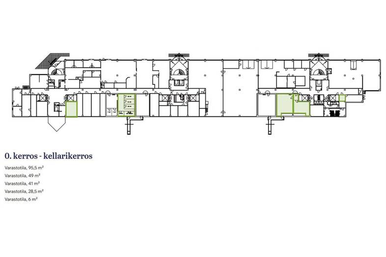
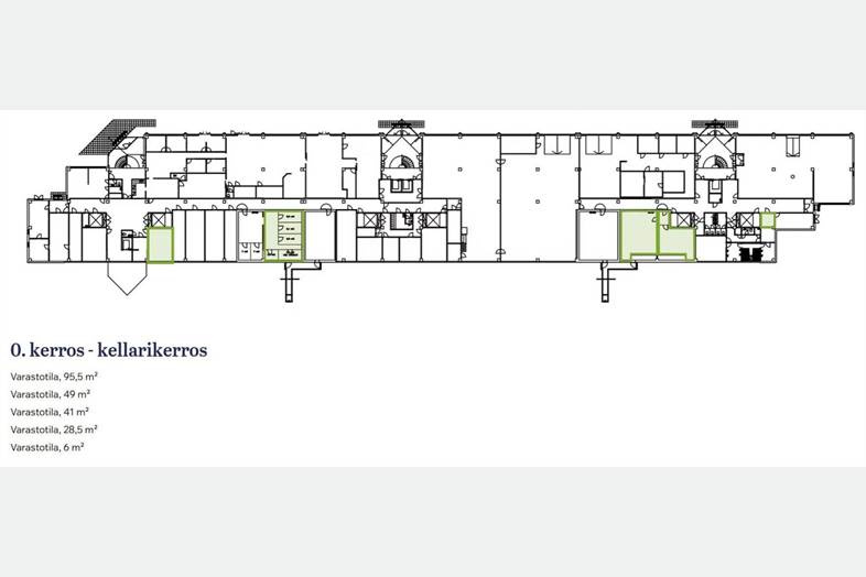
Kide 10 - Pienvarastotilaa 28,5 m² - 95,5 m²
Vuokrattavana erikokoisia pienvarastotiloja – joustavasti tarpeesi mukaan
Kiinteistön pohjakerroksessa on tarjolla erikokoisia pienvarastotiloja, jotka soveltuvat erinomaisesti niin yritysten kuin yksityishenkilöidenkin varastointitarpeisiin. Tilat ovat helposti saavutettavissa ja käytännöllisiä esimerkiksi tavaran säilytykseen, arkistointiin tai varusteiden varastointiin.
Vapaat tilakoot:
28,5 m²
41 m²
49 m²
95,5 m²
Tiloja on saatavilla joustavasti eri kokoisina, joten löydät varmasti tarpeisiisi sopivan vaihtoehdon.
Kide10 - Toimistokiinteistö Espoon Sinimäessä näkyvällä paikalla
Erinomainen sijainti
Kide10 sijaitsee näkyvällä paikalla Espoon Sinimäen alueella, Turun moottoritien varrella Kehä I:n ja Kehä II:n välissä. Tämä arkkitehtuuriltaan näyttävä toimistokiinteistö tarjoaa erinomaiset liikenneyhteydet eri puolille pääkaupunkiseutua. Bussipysäkki on vain 200 metrin päässä, Turunväylälle ja Kehä II:lle pääsee kahdessa minuutissa, Keran juna-asema on 3,7 kilometrin päässä ja lentokentälle on matkaa 21,4 kilometriä.
Monipuoliset palvelut ja ilmaiset parkkipaikat
Kide10 tarjoaa monipuolisia toimitiloja niin pienille kuin suurillekin toimijoille kokoluokassa 15–6750 m². Kide10:n yhteisössä toimii useita yrityksiä, ja se tarjoaa käyttäjilleen työarjessa tarvittavat palvelut: henkilöstöravintolan, kuntosalin, saunatilan ja vuokrattavia neuvotteluhuoneita. Juuri valmistuneessa kokousmaailmassa järjestät helposti asiakastapaamiset ja -kokoukset. Syksyllä 2025 Kide10:n palvelutarjonta laajenee entisestään, kun kiinteistöön avataan uusi golf-simulaattori, joka tarjoaa vuokralaisille mahdollisuuden virkistäytyä ja harjoitella golftaitojaan sisätiloissa.
Kide10:ssä on runsaasti pysäköintipaikkoja, jotka ovat vuokralaisten käytössä veloituksetta. Työmatkapyöräilijöitä varten löytyy lukittava pyörävarasto ja suihkutilat. Alueella on myös monipuolinen palvelutarjonta, joka tekee arjesta sujuvaa ja mukavaa.
Inspiroiva ympäristö
Kide10 on toimitila, joka on osa Espoon Sinimäen aluetta, merkittävää liiketoiminta-aluetta. Vuonna 1988 valmistunut Kide10 rakennettiin alun perin Nokia Oyj:n tutkimuskeskuksen käyttöön. Nykyisin rakennuksessa toimii useita yrityksiä, ja se tarjoaa monipuolisia toimitiloja niin pienille kuin suurillekin toimijoille. Alueen monipuolinen palvelutarjonta tekee sijainnista suositun erityisesti erikoiskaupan ja toimistotilojen tarpeisiin.
Ota yhteyttä
Kiinnostuitko? Ota yhteyttä ja tule tutustumaan tiloihin! Toimitilavälityspalvelumme on tilanhakijalle maksuton.
Perustiedot
Tyyppi:
Varastotila
Sopimustyyppi:
Vuokrataan
Osoite:
Sinimäentie 10, 02630 Espoo
Kaupunginosa:
Sinimäki
Vuokra:
10 €/m²/kk
Tilan koko
Kokonaispinta-ala:
96 m²
Tilan jakautuminen tilatyyppien mukaan
| Tilatyypit | Min m² | Max m² | €/m²/kk |
|---|---|---|---|
| Varastotila | 29 | 96 |
Kartta
Tietoa ilmoittajasta
LogisTila Oy LKV
Näytä kaikki saman ilmoittajan kohteetKauppakatu 14
33210
Tampere
















