Uudet käyttö- ja sopimusehdot
Päivitämme käyttö- ja sopimusehtojamme. Uudet ehdot ovat voimassa 1.5.2025 alkaen. Tutustu ehtoihin
Ruosilantie 14 Konala, Helsinki
00390Tyyppi
Varastotila
Koko
2 223 m²
Kerros
1 / 3
Vuokra
Kysy hintaa!
Monipuolinen ja siisti 2223 m² varasto- ja toimistokokonaisuus loistopaikalta, Konalan ytimestä.
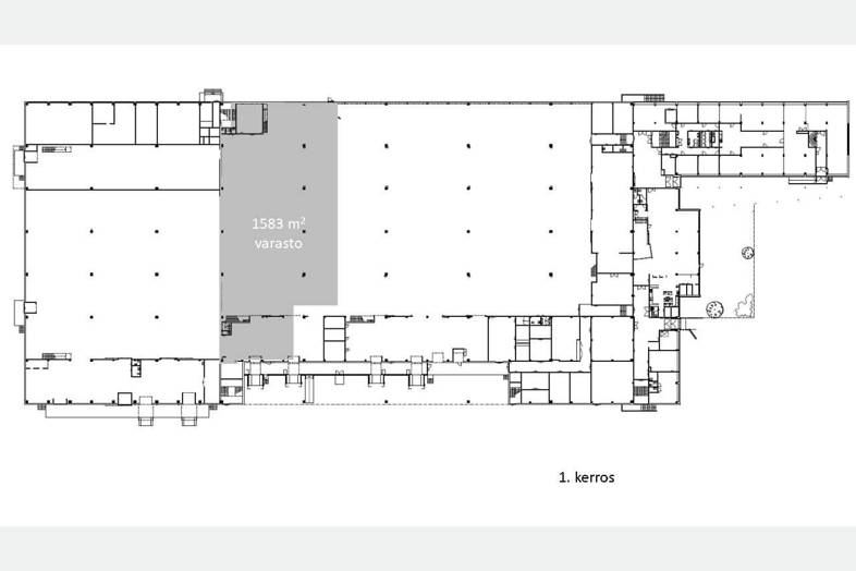
Vuokrattava tila koostuu korkeasta varastosta (1 583 m²), siististä ja kompaktista parvivarastosta (422 m²) sekä toimistotiloista (218 m²), jotka tukevat sujuvaa varastointi- ja toimistotyöskentelyä saman katon alla. Korkea varasto on selkeää ja avaraa tilaa, jossa on lastauslaituri ja nosto-ovi, mikä tekee tavaraliikenteestä vaivatonta. Tilat ovat aiemmin toimineet tapahtuma-alan yrityksen käytössä, joten ne soveltuvat erinomaisesti vaativiin logistiikka- ja varastointitarpeisiin.
Kiinteistö on sitoutunut vastuullisuuteen ja energiatehokkuuteen. Katolle asennetut aurinkopaneelit mahdollistavat uusiutuvan energian hyödyntämisen jo nyt, ja syksystä 2025 alkaen lämmitysmuotona toimii maalämpö. Näiden investointien myötä kiinteistö on jatkossa täysin päästötön energian osalta – merkittävä askel kohti kestävää kehitystä ja pienempiä hiilijalanjälkiä myös vuokralaisille.
Kiinteistön vuokralaisia palvelee alueen arkea sujuvoittava lounasravintola sekä hyvät pysäköintimahdollisuudet, jotka varmistavat joustavan asioinnin niin henkilöstölle kuin yhteistyökumppaneille. Selkeä logistiikka-alue, toimivat lastausratkaisut ja tilojen muunneltavuus tekevät kokonaisuudesta käytännöllisen monenlaisiin tarpeisiin.
Sijainti Konalan vahvalla yritysalueella Kehä I:n liittymän välittömässä läheisyydessä takaa sujuvat kulkuyhteydet niin pääväylille kuin pääkaupunkiseudun sisälle. Hyvä saavutettavuus, riittävät pysäköintitilat ja alueen palvelut tekevät Ruosilantie 14:stä houkuttelevan vaihtoehdon yrityksille, jotka arvostavat tehokkuutta, vastuullisuutta ja toimivia logistiikkaratkaisuja.
Perustiedot
Tyyppi:
Varastotila, Toimisto
Sopimustyyppi:
Vuokrataan
Osoite:
Ruosilantie 14, 00390 Helsinki
Kaupunginosa:
Konala
Tilan koko
Kokonaispinta-ala:
2223 m²
Tilan jakautuminen tilatyyppien mukaan
| Tilatyypit | Min m² | Max m² | €/m²/kk |
|---|---|---|---|
| Varastotila | 2 005 | ||
| Toimisto | 218 |
Rakennustiedot
Rakennusvuosi:
1971
Energialuokka:
Ei lain edellyttämää energiatodistusta
Lisätiedot
Kerros:
1 / 3
Tietoa ilmoittajasta
ScanReal Oy LKV
Näytä kaikki saman ilmoittajan kohteetOpus Business Park, Hitsaajankatu 24
00810
Helsinki








