Uudet käyttö- ja sopimusehdot
Päivitämme käyttö- ja sopimusehtojamme. Uudet ehdot ovat voimassa 1.5.2025 alkaen. Tutustu ehtoihin
savontie 14 Keskusta, Heinola
18100Tyyppi
Liiketila
Koko
64 - 166 m²
Kerros
1
Myyntihinta
Kysy hintaa!
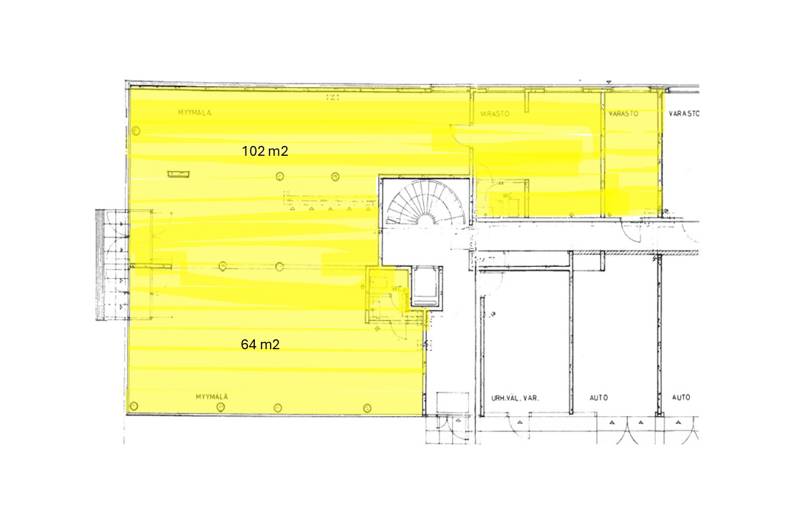
Heinolan keskustassa oleva ensimmäisen kerroksen liiketila, jossa kaksi osakehuoneistoa on yhdistetty yhdeksi liiketilaksi (64 m2 ja 102 m2).
Liiketila on nyt fysioterapeutin käyttööön tehty, mutta voidaan muuttaa helposti muuhunkin käyttöön. Tila voidaan ostaa yhtenä kokonaisuutena tai kumpikin erikseen omina tiloina.
Lisätiedot ja esittelyt 0207290710/0400891057
Lisää kohteita www.premises.fi
Perustiedot
Tyyppi:
Liiketila
Sopimustyyppi:
Myydään
Osoite:
savontie 14, 18100 Heinola
Kaupunginosa:
Keskusta
Tilan koko
Kokonaispinta-ala:
166 m²
Tilan jakautuminen tilatyyppien mukaan
| Tilatyypit | Min m² | Max m² | €/m²/kk |
|---|---|---|---|
| Liiketila | 64 | 166 |
Lisätiedot
Kerros:
1
Kartta
Tietoa ilmoittajasta

CRE PREMISES
Näytä kaikki saman ilmoittajan kohteetVantaankoskentie 14
01670
VANTAA
























