Uudet käyttö- ja sopimusehdot
Päivitämme käyttö- ja sopimusehtojamme. Uudet ehdot ovat voimassa 1.5.2025 alkaen. Tutustu ehtoihin
Urho Kekkosen katu 3-7 Kamppi, Helsinki
00100Tyyppi
Toimisto
Koko
383 m²
Kerros
5
Vuokra
Kysy hintaa!
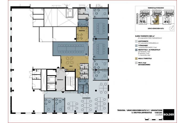
Keskustan tehokas avotoimisto 383 m2
Vuokrataan 5. kerroksen moderni 383 m² avotoimisto aivan Kampin sydämessä, palveluiden äärellä. Tilasta on näkymät Urho Kekkosen kadulle.
Laadukas n. 383 m2 toimisto paraatipaikalla aivan Kampin sydämessä. Tilassa on tällä hetkellä erikokoisia neuvotteluhuoneita, toimistohuoneita sekä avotoimistoa. Vapaana oleva kerros on kokonaisuudessaan 735m2, joka voidaan jakaa kahdelle toimijalle. Koko ja ehdotettu pohja on esimerkki, näitä voidaan muokata juuri teidän tarpeidenne mukaisesti. Tila sijaitsee Urhontornin 5. kerroksessa.
Urhontorni on osa Kampin kauppakeskuksen yhteydessä sijaitsevaa toimistorakennuskokonaisuutta Trigoraa. Trigora on rakennettu 2005, toimistotilaa kolmessa tornissa on yhteensä 12 000 m² ja kokonaisuuden on suunnitellut Pekka Helin. Torneista on suora yhteys kauppakeskukseen, joten kattavat palvelut, ravintolamaailma, kaupat, julkiset kulkuvälineet ja parkkihallit välittömässä läheisyydessä.
Osoite: Urho Kekkosen katu 3-7
Kaupunginosa: Kamppi
Tilatyyppi: Toimistotila
Pinta-ala: 383m²
Kerros: 5
Vapautuminen: Vapaa
Max. henkilömäärä: 35
Ympäristösertifikaatit: BREEAM - Very Good
Rakennusvuosi: 2005
Palvelut: Tietoliikenne, Lounasravintola
Vuokrataso on kohtuullinen.
Kysy lisätietoja kohteesta:
Juselius Harry KTM, LKV, Kjs
0400 208 419
harry.juselius@toimitilapalvelu.fi
Kaartinen Pentti Ekonomi
050 337 8148
pentti.kaartinen@toimitilapalvelu.fi
Aarno Toffer Merkonomi
044 978 1393
aarno.toffer@toimitilapalvelu.fi
Perustiedot
Tyyppi:
Toimisto
Sopimustyyppi:
Vuokrataan
Osoite:
Urho Kekkosen katu 3-7, 00100 Helsinki
Kaupunginosa:
Kamppi
Tilan koko
Kokonaispinta-ala:
383 m²
Lisätiedot
Kerros:
5
Ota yhteyttä
Toimitilapalvelu FNTC LKV
Lähetä yhteydenottopyyntö
Tietoa ilmoittajasta
Toimitilapalvelu FNTC LKV
Näytä kaikki saman ilmoittajan kohteetKäenkuja 8 A 45
00500
Helsinki


















