Uudet käyttö- ja sopimusehdot
Päivitämme käyttö- ja sopimusehtojamme. Uudet ehdot ovat voimassa 1.5.2025 alkaen. Tutustu ehtoihin
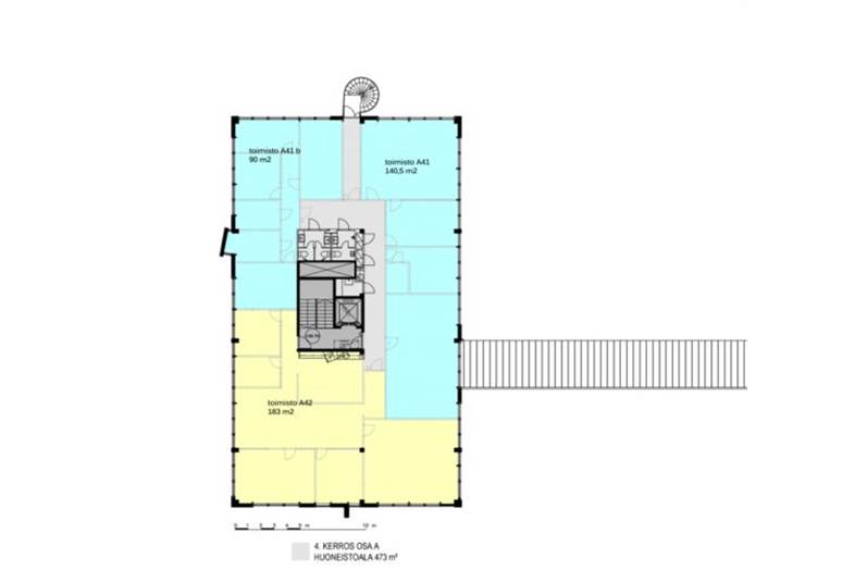
Vesistömönaukio 1-3 Länsiranta, Turku
20100Tyyppi
Toimisto
Koko
473 m²
Kerros
4
Vuokra
Kysy hintaa!
Perustiedot
Tilan koko
Lisätiedot
Tietoa ilmoittajasta
Croisette Finland Oy
Näytä kaikki saman ilmoittajan kohteetErottajankatu 5 A 6
00130
Helsinki
Croisette palvelee paikallisesti Helsingissä, Tampereella, Espoossa ja Vantaalla. Löydämme sinulle juuri sinulle parhaan toimitilan riippumatta omistajasta. Croisette Real Estate Partner on nopeiten kasvava ja innovatiivisin konsultointiyritys Pohjoismaiden kiinteistöalalla. Me edustamme alan kehittyneintä ajattelua. Omistautunut tiimimme tarjoaa laadukasta neuvonantoa vuokrauksen, kiinteistötransaktioiden, sekä arvioinnin ja analyysien parissa.



































































