Uudet käyttö- ja sopimusehdot
Päivitämme käyttö- ja sopimusehtojamme. Uudet ehdot ovat voimassa 1.5.2025 alkaen. Tutustu ehtoihin
Metsänpojankuja 1 Pohjois-Tapiola, Espoo
02130Tyyppi
Toimisto
Koko
6 180 m²
Vuokra
Kysy hintaa!
Maarinportti - Toimisto 6180 m²
Vuokrataan kokonainen toimistorakennus
MaarinPortti on pääkonttoritason toimistokohde, joka valmistuu täysin uudistettuna vuonna 2025. Tarjolla on itsenäinen toimistokokonaisuus, johon saa työpisteet jopa yli 400 henkilön organisaatiolle. Lisäksi käytössä on runsaat liiketoiminnan tukitilat katutasossa ja ylimmässä kerroksessa. Ota yhteyttä, niin kerromme lisää!
Espoon MaarinPortti – Monipuoliset ja mukautuvat toimitilat
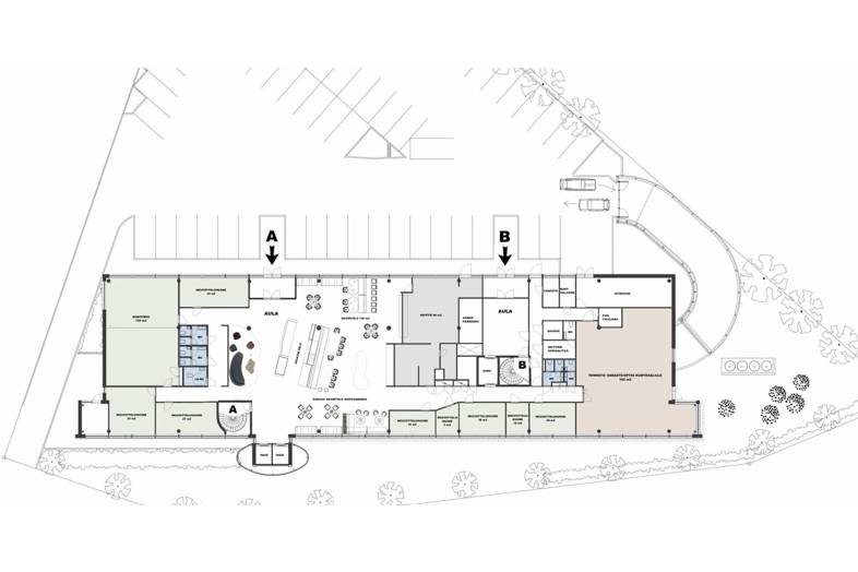
MaarinPortti tarjoaa moderneja ja muunneltavia toimitiloja Pohjois-Tapiolassa, jotka suunnitellaan yksilöllisesti vastaamaan yrityksesi tarpeita. Toimistotiloja on tarjolla kokoluokissa 198 m² - 6180 m². Tulevalla asiakkaalla on mahdollisuus vaikuttaa oman toimistonsa lopullisiin materiaali- ja toimitilaratkaisuihin. Muutos on helppoa, sillä käytettävissä on tilasuunnittelijan palvelut, jotta yrityksesi tilaratkaisuista saadaan toimiva ja sujuva kokonaisuus.
Tervetuloa MaarinPorttiin – tulevaisuuden toimitiloihin, joissa yrityksesi voi kasvaa ja menestyä!
Sijainti
MaarinPortti sijaitsee Pohjois-Tapiolassa, Kehä I:n ja Tapiolan liittymän välittömässä läheisyydessä. Tämä 6-kerroksinen toimitilakiinteistö yhdistyy Otaniemen länsiosassa olevaan Maarin alueeseen Kehä I:n yli menevän Maarinsillan kautta. Alueen mittava täydennysrakentaminen ja raidejokeripysäkin valmistuminen tekevät siitä entistä monipuolisemman ja arvokkaamman osan kulttuuriympäristöä.
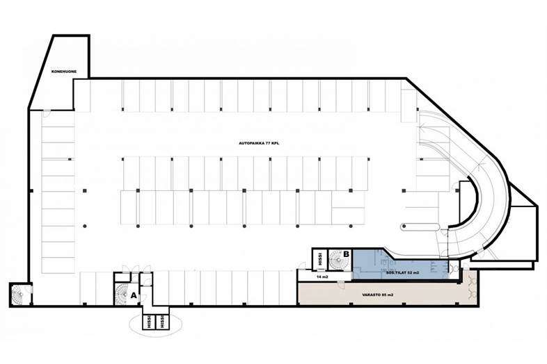
MaarinPorttiin on helppo saapua niin julkisilla kulkuvälineillä kuin autolla. Kiinteistön oma pysäköintihalli takaa vaivattoman pysäköinnin, ja uudistuksen yhteydessä sinne lisätään myös sähköautojen latauspisteitä. Kehä I:tä pitkin kulkevat lukuisat bussit, ja runkolinja 550 palvelee erityisen hyvin MaarinPorttiin saapuvia. Lähin metroasema, Aalto-yliopisto, on vain 15 minuutin kävelymatkan päässä. Tapiolan keskus ja Kauppakeskus Ainoan kattavat palvelut ovat noin 2 km päässä, ja merellinen Laajalahden luonnonsuojelualue sekä Espoon rantaraitti ovat vain 8 minuutin kävelymatkan päässä.
Palvelut
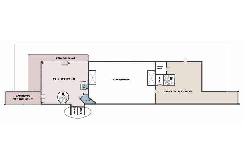
MaarinPortti tarjoaa laadukkaita palveluita, jotka tukevat yrityksesi toimintaa ja työntekijöiden hyvinvointia. Kiinteistössä on aulapalvelu, lounasravintola, catering, vuokrattavia neuvottelutiloja ja auditorio. 6. kerros voidaan keskittää täysin työhyvinvointia edistäville toiminnoille, kuten aktiivisuuteen ja liikuntaan. Kerroksessa on myös katettu näköalaterassi, joka tarjoaa upeat puitteet rentoutumiseen ja sosiaaliseen kanssakäymiseen.
Lähialueella on lisää palveluita: lounasravintoloita ja ruokakauppa, jotka lisäävät alueen viihtyisyyttä ja käytännöllisyyttä.
Vastuullisuus
MaarinPortti saneerataan vuosien 2024-2025 aikana, ja tavoitteena on saavuttaa LEED Platinum -tason ympäristösertifikaatti. Tämä on kansainvälisen LEED-sertifiointijärjestelmän korkein taso, joka kertoo erinomaisesta ympäristöasioiden huomioimisesta. Saneerauksella pyritään pidentämään kiinteistön elinkaarta, parantamaan energiatehokkuutta ja nostamaan laatutasoa alkuperäistä paremmaksi. Korjausrakentamisessa syntyy uudisrakentamista vähäisemmät materiaalipäästöt, kun kiinteistön runkorakenteet säilytetään.
MaarinPortin modernit toimitilat ovat muunneltavia ja suunnitellaan yksilöllisesti vastaamaan yrityksesi tarpeita. Tulevalla asiakkaalla on mahdollisuus vaikuttaa toimitilaratkaisuihin ja materiaalivalintoihin, mikä tekee tiloista juuri sinun yrityksellesi sopivat.
Ota yhteyttä
Kiinnostuitko? Ota yhteyttä ja tule tutustumaan tiloihin! Toimitilavälityspalvelumme on tilanhakijalle maksuton.
Perustiedot
Tyyppi:
Toimisto
Sopimustyyppi:
Vuokrataan
Osoite:
Metsänpojankuja 1, 02130 Espoo
Kaupunginosa:
Pohjois-Tapiola
Tilan koko
Kokonaispinta-ala:
6180 m²
Kartta
Tietoa ilmoittajasta
LogisTila Oy LKV
Näytä kaikki saman ilmoittajan kohteetKauppakatu 14
33210
Tampere
































































