Uudet käyttö- ja sopimusehdot
Päivitämme käyttö- ja sopimusehtojamme. Uudet ehdot ovat voimassa 1.5.2025 alkaen. Tutustu ehtoihin
Kasarmikatu 5 Hennala, Lahti
15700Tyyppi
Toimisto
Koko
40 m²
Kerros
2
Vuokra
Kysy hintaa!
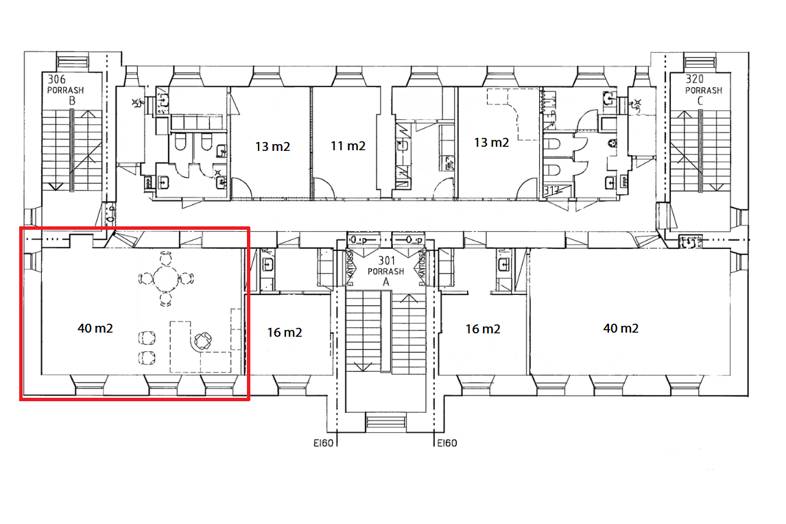
KASARMIKATU 5 - toimistotila 40m2
Tämä valoisa ja rauhallinen kulmahuone sijaitsee Luutnantti-rakennuksen pientoimistoalueen 2. krs.
Tilan kolmesta suuresta ikkunasta avautuu kaunis näkymä ihastuttavalle lehmuskujalle ja pienempi ikkuna pohjoiseen. Sisäänkäynti näyttävästä pääportaikosta tai sisäpihan sivuportaan kautta. Tunnelman kruunaa alkuperäinen lautalattia ja yli 3 m huonekorkeus.
Tilat ovat esteettömät. Tiloja tarjolla 11-40m2. KYSY LISÄÄ!
Pientoimistoalueen vuokralaisilla on käytössään veloituksetta:
- yhteiskäyttötilat (mm. suihku ja wc-tilat)
- kahvi-/taukotilat (kahviautomaatti kahveineen)
- neuvottelutilat
- Wi-Fi
- kopiokone
Lisätiedot ja kohdenäytöt: p. 040 7070 321 / Heikki
Perustiedot
Tyyppi:
Toimisto
Sopimustyyppi:
Vuokrataan
Osoite:
Kasarmikatu 5, 15700 Lahti
Kaupunginosa:
Hennala
Tilan koko
Kokonaispinta-ala:
40 m²
Lisätiedot
Kerros:
2
Ympäristö
Liikenneyhteydet:
Bussit n. 200 m.
Kartta
Tietoa ilmoittajasta

CRE PREMISES
Näytä kaikki saman ilmoittajan kohteetVantaankoskentie 14
01670
VANTAA


























