Uudet käyttö- ja sopimusehdot
Päivitämme käyttö- ja sopimusehtojamme. Uudet ehdot ovat voimassa 1.5.2025 alkaen. Tutustu ehtoihin
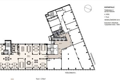
Töölönkatu 4 Helsinki
00100Tyyppi
Toimisto
Koko
375 m²
Kerros
4
Vuokra
Kysy hintaa!
Saatavilla
Heti vapaa
Vuokrataan elegantisti uudistettuja toimistotiloja legendaarisessa Kuparitalossa, aivan eduskunnan naapurissa. Tarjolla on erikokoisia, vuokralaisen tarpeisiin muokattavissa olevia tiloja kahdeksassa kerroksessa. Valitse sisustus kolmesta upeasta teemasta: klassinen New York (Philip), linjakas funkkis (Märta) tai skandinaavinen 50-luku (Arne).
Etu-Töölön parhaalla paikalla sijaitseva Kuparitalo yhdistää historiallisen arvokkuuden ja modernin toimivuuden erinomaisilla kulkuyhteyksillä ja palveluilla, vain lyhyen kävelymatkan päässä rautatieasemalta ja Kampista.
Ota yhteyttä ja kysy lisää:
www.blanctoimitilat.fi
Harri Laisto Yrittäjä, LKV, Kaupanvahvistaja
harri.laisto@blanckiinteisto.com
+358 40 536 5590
Perustiedot
Tyyppi:
Toimisto
Sopimustyyppi:
Vuokrataan
Osoite:
Töölönkatu 4, 00100 Helsinki
Lisätiedot
Saatavilla:
Heti vapaa
Kerros:
4
Kartta
Ota yhteyttä
Harri Laisto
Toimitila-asiantuntija, CEO, Kaupanvahvistaja, LKV
Näytä puhelinnumero
Lähetä yhteydenottopyyntö
Tietoa ilmoittajasta
Blanc Toimitilat
Näytä kaikki saman ilmoittajan kohteetHenry Fordin katu 5
00150
Helsinki


















