Uudet käyttö- ja sopimusehdot
Päivitämme käyttö- ja sopimusehtojamme. Uudet ehdot ovat voimassa 1.5.2025 alkaen. Tutustu ehtoihin
Ruosilantie 14 Konala, Helsinki
00390Tyyppi
Varastotila
Koko
2 223 m²
Vuokra
Kysy hintaa!
Toimitilat Helsinki
vuokrataan varasto-/tuotantotila 2223 m²
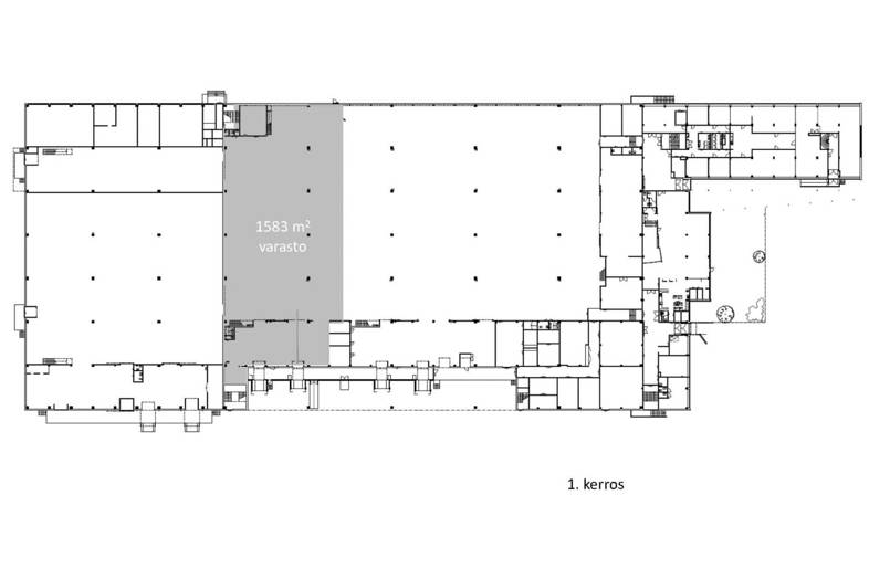
Vuokralle vapautumassa 1.1.2026 kätevä kokonaisuus sisältäen korkeaa varastoa 1583 m², siistiä ja kompaktia parvivarastoa 422 m² sekä toimistoa 218 m².
Korkea varasto (vapaa korkeus 6m) on selkeää tila, jossa on lastauslaituri ja nosto-ovi. Toimitila on toiminut ennen tapahtuma-alan toimijan varastona.
Kohteella on erittäin hyvä sijainti ja Kehä I liittymän suorassa läheisyydessä. Kohteella lounasravintola. Hyvin parkkitilaa.
Kiinteistölle on jo asennettu aurinkopaneelit, jotka mahdollistavat uusiutuvan energian hyödyntämisen. Syksystä 2025 alkaen kiinteistön lämmitysmuotona toimii maalämpö, mikä tekee siitä entistä energiatehokkaamman. Näiden investointien myötä kiinteistö on jatkossa energian osalta täysin päästötön (0-päästöinen) – askel kohti vastuullisempaa tulevaisuutta!
Perustiedot
Tyyppi:
Varastotila
Sopimustyyppi:
Vuokrataan
Osoite:
Ruosilantie 14, 00390 Helsinki
Kaupunginosa:
Konala
Tilan koko
Kokonaispinta-ala:
2223 m²
Rakennustiedot
Rakennusvuosi:
1971
Ympäristö
Lähipalvelut:
Lounasravintola
Tietoa ilmoittajasta
Sagax Finland Asset Management Oy
Näytä kaikki saman ilmoittajan kohteetAleksanterinkatu 19
00100
Helsinki


























