Uudet käyttö- ja sopimusehdot
Päivitämme käyttö- ja sopimusehtojamme. Uudet ehdot ovat voimassa 1.5.2025 alkaen. Tutustu ehtoihin
Eerikinkatu 6 b Keskusta, TURKU
20810Tyyppi
Toimisto
Koko
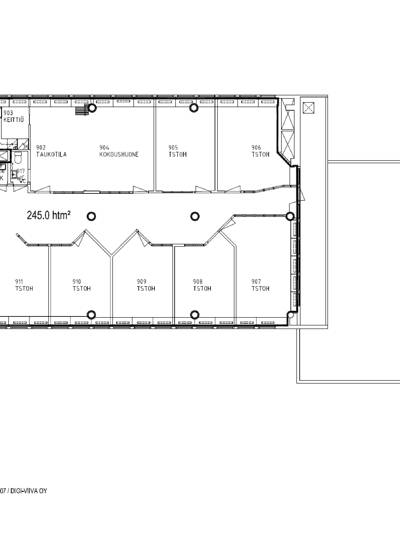
245 m²
Vuokra
Kysy hintaa!
Saatavilla
01.12.2025
Vuokrattavana toimistotilaa keskeisellä sijainnilla Turun keskustassa.
Etsitkö toimistotilaa Turun keskustasta? Eerikinkatu 6 b:ssä sijaitsee tilava ja valoisa toimisto, joka tarjoaa upeat näkymät kaupungin ylle. Tämä 245 neliömetrin toimisto sijaitsee erinomaisella paikalla, keskellä kaupungin vilinää ja palveluita.
Toimistossa on yhteensä kymmenen huonetta, jotka mahdollistavat monipuolisen tilankäytön. Tilat soveltuvat erinomaisesti niin pienelle kuin suuremmallekin tiimille. Lisäksi rakennuksessa on hissi, mikä tekee liikkumisesta sujuvaa.
Keskustan alueella sijaitseminen takaa loistavat liikenneyhteydet ja monipuoliset palvelut aivan kulman takana. Tämä toimistotila tarjoaa yrityksellesi mahdollisuuden toimia keskeisellä paikalla, missä kaikki tarvittava on lähellä.
Tartu tilaisuuteen ja tule tutustumaan tähän ainutlaatuiseen toimistotilaan Turun sydämessä!
Tilassa on 10 huonetta + keittiö ja wc tilat
9 krs.
Toimisto on viilennetty !
Hyväkuntoista toimistotilaa.
Vapautuu 1.12.2025
Tiedustelut ja esittelyt Jouko Reijonen 0400 570098 jouko.reijonen@tsvv.fi
Perustiedot
Tyyppi:
Toimisto
Sopimustyyppi:
Vuokrataan
Osoite:
Eerikinkatu 6 b, 20810 TURKU
Kaupunginosa:
Keskusta
Lisätiedot
Saatavilla:
01.12.2025





