Uudet käyttö- ja sopimusehdot
Päivitämme käyttö- ja sopimusehtojamme. Uudet ehdot ovat voimassa 1.5.2025 alkaen. Tutustu ehtoihin
Visiokatu 1-3 Hermia, Tampere
33270Tyyppi
Toimisto
Koko
469 - 1 884 m²
Kerros
5
Vuokra
Kysy hintaa!
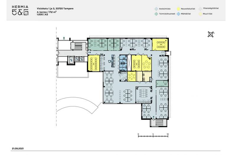
300-712 m2 siistiä toimistotilaa Hermiasta
Vuokrataan siistiä ja laadukasta toimistotilaa Hermiasta!
Toimistotilaa on mahdollista pilkkoa tarvittaessa pienemmiksi tiloiksi, min kuitenkin n. 469 m2.
Vapaana on kolme toimistotilaa: 710 m2, 705 m2 ja 469 m2. Tilat voi vuokrata yhdessä tai erikseen. Tilat sijaitsevat Hermia 5:n toimistorakennuksen 5. kerroksessa. Kyseisestä toimistotiloista löytyy aulatilaa, runsaasti erikokoisia työhuoneita, iso neuvotteluhuone, kahvio, wc-tilat, kopiointihuone, atk- tila ja varastotila. Tilan ikkunoista avautuu upea metsämaisema. Toimistohuoneet ovat käytännöllisiä ja valoisia, ja helposti omien makumieltymysten ja tarpeiden mukaan kalustettavissa.
Kiinteistössä toimii useita eri kokoisia, kotimaisia ja kansainvälisiä yrityksiä. Kestävän kehityksen periaatteita on otettu huomioon mm. valaistustekniikassa ja vihreän sähkösopimuksen myötä.
Hervannan kaupunginosassa sijaitsevaan Hermiaan on helppo tulla autolla, pyörällä tai julkisilla ja se sijaitsee vain 15 min ajomatkan päässä Tampereen keskustasta. Hermia 5 ja 6 ovat osa aikoinaan Nokialle rakennettua kampusaluetta, joka on toiminut innovaatioiden alkulähteenä jo vuosikymmenten ajan. Yhteensä yli 30.000m² toimitilaa mitä erilaisimpiin tarpeisiin laboratorio- ja testitiloista perinteisempiin toimistotiloihin.
• Sodexon aulapalvelu
• Sodexon lounasravintola
• Kuntosali
• Pukuhuoneet ja suihkut
• Vuokrattavat neuvotteluhuoneet
• Tilavat sauna- ja oleskelutilat
• Kesäterassi
• Auditorio
• Lastauslaituri
Yksityisesittelyt sopimuksen mukaan joustavasti. Tervetuloa!
Perustiedot
Tyyppi:
Toimisto
Sopimustyyppi:
Vuokrataan
Osoite:
Visiokatu 1-3, 33270 Tampere
Kaupunginosa:
Hermia
Tilan koko
Kokonaispinta-ala:
1884 m²
Tilan jakautuminen tilatyyppien mukaan
| Tilatyypit | Min m² | Max m² | €/m²/kk |
|---|---|---|---|
| Toimisto | 469 | 1 884 |
Lisätiedot
Kerros:
5
Tietoa ilmoittajasta
LogisTila Oy LKV
Näytä kaikki saman ilmoittajan kohteetKauppakatu 14
33210
Tampere
























