Uudet käyttö- ja sopimusehdot
Päivitämme käyttö- ja sopimusehtojamme. Uudet ehdot ovat voimassa 1.5.2025 alkaen. Tutustu ehtoihin
Takojankatu 1 Kaleva, Tampere
33530Tyyppi
Toimisto
Koko
153 m²
Kerros
3
Vuokra
Kysy hintaa!
Toimitila Kalevassa
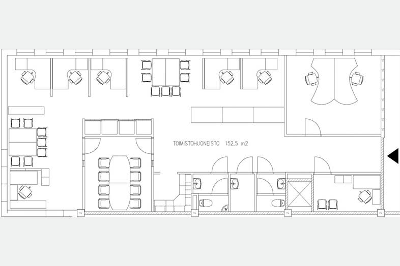
Vuokrataan Kalevasta toimistotila, jonka koko on 152,5 m2.
Kyseessä on kolmannen kerroksen siisti, valoisa tila. Tilassa on monipuolisesti työhuoneita ja avotilaa. Keskellä on neuvotteluhuone. Tilassa on kaksi WC-tilaa sekä suihkukaappi sekä keittiönurkkaus.
Erinomainen sijainti Kalevassa. Pihassa parkkipaikkoja.
Tila on heti vapaa.
Perustiedot
Tyyppi:
Toimisto
Sopimustyyppi:
Vuokrataan
Osoite:
Takojankatu 1, 33530 Tampere
Kaupunginosa:
Kaleva
Tilan koko
Kokonaispinta-ala:
153 m²
Lisätiedot
Kerros:
3
Kartta
Tietoa ilmoittajasta
LogisTila Oy LKV
Näytä kaikki saman ilmoittajan kohteetKauppakatu 14
33210
Tampere




















