Uudet käyttö- ja sopimusehdot
Päivitämme käyttö- ja sopimusehtojamme. Uudet ehdot ovat voimassa 1.5.2025 alkaen. Tutustu ehtoihin
Linnankatu 64 Keskusta, Turku
20100Tyyppi
Toimisto
Koko
50 - 150 m²
Vuokra
Kysy hintaa!
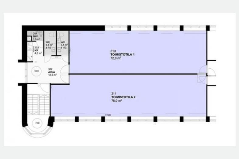
Toimistotilaa 150 m2
Toimistotilaa Linnankadulla historiallisessa miljöössä
Kolmannen kerroksen toimistokokonaisuus vapaana Turun Catharinassa, joka on moderniin toimistokäyttöön 2010-luvulla saneerattu vanha torpedovarikko.
Tila koostuu kahdesta isosta työtilasta, aulasta ja keittiötilasta ja 2:sta wc.tilasta. Isot työhuoneet on tällä hetkellä jaettu kahteen osaan kevytseinin ja pinnat päällystetty akustiikka parantavilla väliaikaisilla ratkaisuilla edellisen musiikkialan vuokralaisen jäljiltä. Väliseinät voidaan jättää ja viimeistellä tai ne voidaan purkaa pois.
Rakennuksesta löytyy myös muita tilavaihtoehtoja joita kannattaa tiedustella erikseen.
Katutasossa ranskankielinen päiväkoti. Aurajokitunnelmin rauhallisen välikadun varrella. Lähellä keskustaa Linnankadun varrella, mutta silti rauhallisessa ympäristössä Turun Linnan, Forum Marinumin, Suomen Joutsenen ja Veistämöntorin tuntumassa.
Loistava sijainti Aurajoen varrella nopeasti kehittyvän Linnanfältin vieressä Länsirannan kaupunginosassa.
Soita ja tiedustele lisää!
Perustiedot
Tyyppi:
Toimisto
Sopimustyyppi:
Vuokrataan
Osoite:
Linnankatu 64, 20100 Turku
Kaupunginosa:
Keskusta
Tilan koko
Kokonaispinta-ala:
150 m²
Tilan jakautuminen tilatyyppien mukaan
| Tilatyypit | Min m² | Max m² | €/m²/kk |
|---|---|---|---|
| Toimisto | 50 | 150 |
Kartta
Tietoa ilmoittajasta
LogisTila Oy LKV
Näytä kaikki saman ilmoittajan kohteetKauppakatu 14
33210
Tampere


















