Uudet käyttö- ja sopimusehdot
Päivitämme käyttö- ja sopimusehtojamme. Uudet ehdot ovat voimassa 1.5.2025 alkaen. Tutustu ehtoihin
Kuurnakatu 3 B Käpykangas, Joensuu
80100Tyyppi
Liiketila
Koko
100 - 800 m²
Vuokra
Kysy hintaa!
Liiketila & Myymälätila
Liike & Myymälätilaa 100 - 800 m² @ Joensuu
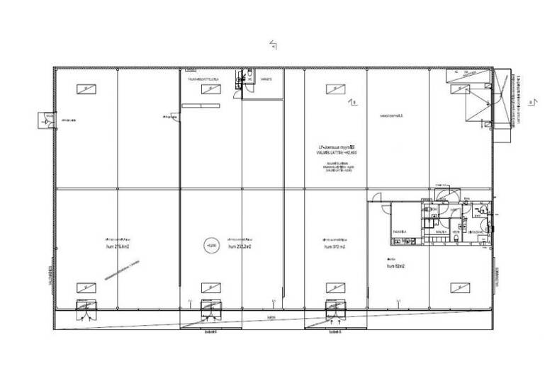
Tunnetussa Liiketalossa on vapaana liiketilaa ja myymälätilaa alkaen 100 neliöstä isompaan päin.
Tilat sopivat hyvin yritykselle, joka tarvitsee asiakasvirtaa tontille ja myymälään. Erikoistavarakauppa, käyttötavarakauppa sopivat hyvin kiinteistölle ja tiloja voidaan säätää sopivaksi yrityksen käyttötarpeen mukaisesti. Tilat sisältävät valmiiksi laadukkaat pinnat, joten sisustusta vaille ovat tilat käyttöön otettavissa.
Valmiina on muun muassa:
iso piha-alue
lastaussilta nosto-ovella
laattalattiat sisätiloissa
keittiötilat
sos.tilat
koneellinen ilmanvaihto
viilennys
hyvä valaistus
kuituyhteys kiinteistölle
hälytinvalmius
isot näyteikkunat
näkyvät mainospaikat
Pyloni
Kiinteistö ja sijainti
Käpykangas on vilkas työssäkäyntialue ja Liiketalo sijaitsee vilkkaan liikenneympyrän vieressä. Osoite on Kuurnankatu 3 ja tontille saapuminen on vaivatonta.
Kiinteistöä on ylläpidetty hyvin ja kaikki fasiliteetit ovat kunnossa ja perusmuuttovalmiina.
Mahdolliset muutos- ja lisätyöt sovitaan helposti kiinteistön omistajan kanssa ja muutostyöt toteutetaan nopealla aikataululla.
Piha-alueella on runsaasti asiakaspaikkoja ja vuokralaiselle korvamerkitään omat tolppapaikat.
Ota yhteyttä ja sovitaan, miten edetään asiassa!
Perustiedot
Tyyppi:
Liiketila
Sopimustyyppi:
Vuokrataan
Osoite:
Kuurnakatu 3 B, 80100 Joensuu
Kaupunginosa:
Käpykangas
Tilan koko
Kokonaispinta-ala:
800 m²
Tilan jakautuminen tilatyyppien mukaan
| Tilatyypit | Min m² | Max m² | €/m²/kk |
|---|---|---|---|
| Liiketila | 100 | 800 |
Tietoa ilmoittajasta
LogisTila Oy LKV
Näytä kaikki saman ilmoittajan kohteetKauppakatu 14
33210
Tampere




















