Uudet käyttö- ja sopimusehdot
Päivitämme käyttö- ja sopimusehtojamme. Uudet ehdot ovat voimassa 1.5.2025 alkaen. Tutustu ehtoihin
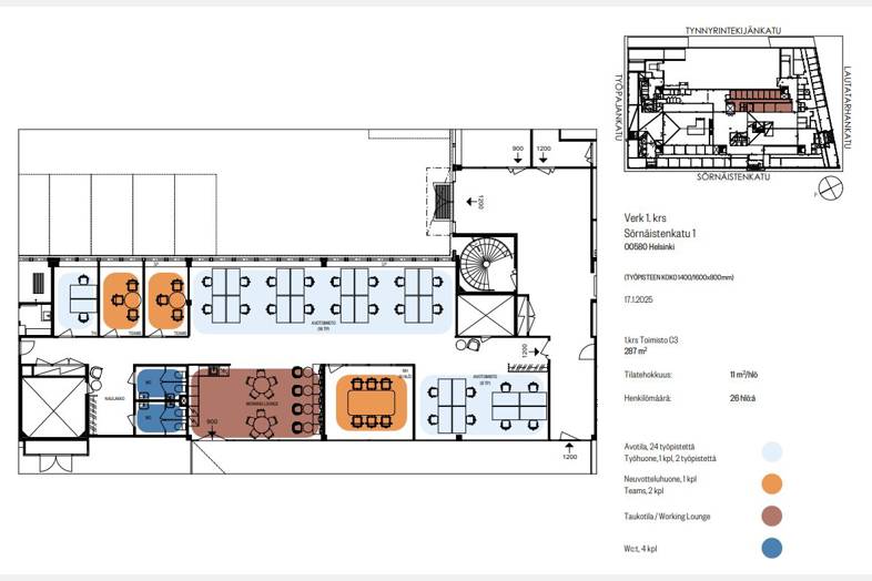
Sörnäistenkatu 1 Sörnäinen, Helsinki
00500Tyyppi
Toimisto
Koko
287 m²
Kerros
1 / 5
Vuokra
Kysy hintaa!
Business Center VERK on vetovoimainen toimistotalo kehittyvällä Kalasataman alueella. Täydellisesti peruskorjattu VERK-talo tarjoaa nykyaikaisen toimintaympäristön ja kattavat oheispalvelut kaiken kokoisille yrityksille. Kiinteistössä on mm. - aulapalvelu, neuvottelukeskus, lounge-viihtymisalueita, lounasravintola, kahvio, kuntosali, autohalli jne., Tämä viihtyisä 287m2 Aina Valmis-toimisto sijaitsee talon ensimmäisessä kerroksessa. Ota yhteyttä ja sovi esittely, vuokrauspalvelumme on tilanhakijoille maksutonta. Puh. 09 77 45 100.
Sörnäistenkatu 1 kiinteistö on täysin peruskorjattu vuonna 2021. Talon palvelut ovat ensiluokkaiset; - aulapalvelu, neuvottelukeskus, laadukas henkilöstöravintola, vetäytymistiloja, kuntosali, autohalli jne. Talotekniset ratkaisut ovat huippuluokkaa.
Kehittyvä Kalasataman alue
Sijainti: Sörnäinen - Kalasatama
Perustiedot
Tyyppi:
Toimisto
Sopimustyyppi:
Vuokrataan
Osoite:
Sörnäistenkatu 1, 00500 Helsinki
Kaupunginosa:
Sörnäinen
Tilan koko
Kokonaispinta-ala:
287 m²
Rakennustiedot
Energialuokka:
Ei lain edellyttämää energiatodistusta
Lisätiedot
Kerros:
1 / 5
Ympäristö
Pysäköinti:
Autohalli, pihapysäköinti, katu.
Lähipalvelut:
Talon omien palvelujen lisäksi, lähellä sijaitsevat teurastamoalueen ravintola ja tapahtumapalvelut sekä kauppakeskus Redi.
Liikenneyhteydet:
Kalasataman metroasema muutaman minuutin kävelymatkan päässä, myös Hämeentien raitiovaunut ovat lähellä.
Tietoa ilmoittajasta

Senaatin Notariaatti Oy LKV
Näytä kaikki saman ilmoittajan kohteetLämmittäjänkatu 4 A
00880
HELSINKI


































