Fredrikinkatu 61 Kamppi, Helsinki

00100

Tyyppi

Toimisto

Koko

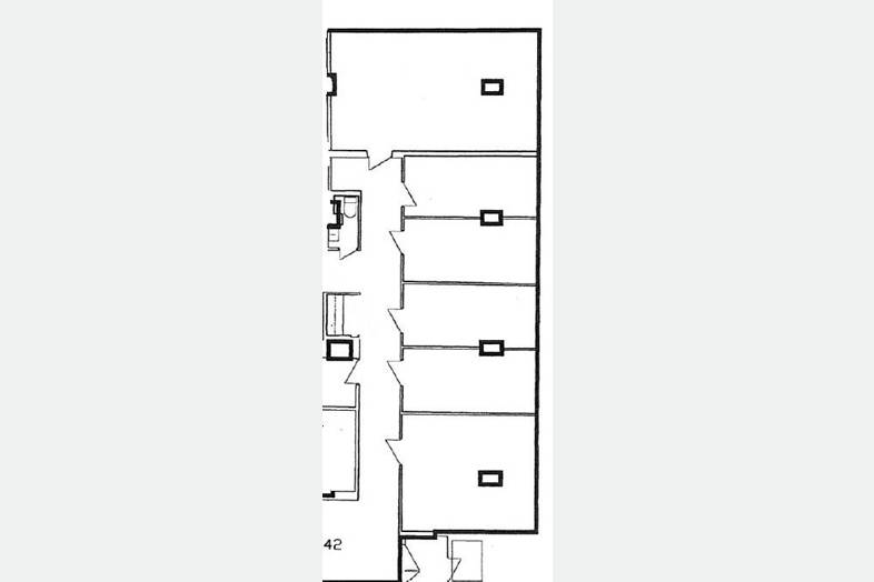
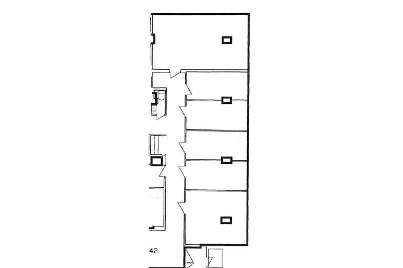
140 m²

Kerros

4 / 9

Vuokra

Kampissa siisti toimitila n 140 m2 huippusijainnilla! Hyödynnä nyt vuokratarjous! Loisto sijainnilla huonetoimisto n 140 m2 Kampin keskuksen vieressä. Erikokoisia n 10-25m2 huoneita, mini-kk, siivouskomero, wc, varasto, ovipuhelin. Tila saneerattu, parkettilattia hiottu ja lakattu, seinät maalattu. Hisseillä tai portaista käynti. Heti vapaa. Nyt tarjous vuokra 2450 eur/kk (3kk). Tarjouskauden jälkeen normaali vuokra 3250 eur. Alv:ia ei peritä. Talossa kaikki isot remontit tehty, kuten ikkuna-, julkisivu- ja putkiremontti. Oma sisäänkäynti, oma sähkömittari. Lämpö, jäte sis vuokraan, sähkö erilliskorvaus. Sovi esittely: hannu@realsale.fi tai p. 050 64 363. Vuokra: 2450 eur Tarjous!

Perustiedot

Tyyppi:
Toimisto
Sopimustyyppi:
Vuokrataan
Osoite:
Fredrikinkatu 61, 00100 Helsinki
Kaupunginosa:
Kamppi

Tilan koko

Kokonaispinta-ala:
140 m²

Rakennustiedot

Rakennusvuosi:
1960
Energialuokka:
H (ei luokitusta)

Lisätiedot

Kerros:
4 / 9

Ympäristö

Pysäköinti:
Parkkihalli vieressä
Lähipalvelut:
Kampin keskuksen lukuisat palvelut
Liikenneyhteydet:
Kampin metro 100m päässä.

Kartta

Ota yhteyttä

Real Sale Oy logotyyppi
Real Sale Oy
Näytä puhelinnumero

Lähetä yhteydenottopyyntö

Tietosuojaseloste
This site is protected by reCAPTCHA and the Google Privacy Policy and Terms of Service apply.

Tietoa ilmoittajasta

Real Sale Oy logotyyppi