Uudet käyttö- ja sopimusehdot
Päivitämme käyttö- ja sopimusehtojamme. Uudet ehdot ovat voimassa 1.5.2025 alkaen. Tutustu ehtoihin
Hiomotie 32 Pitäjänmäki, Helsinki
00380Tyyppi
Toimisto
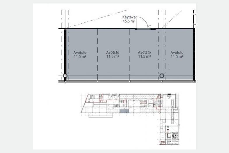
Koko
45 m²
Kerros
1 / 8
Vuokra
Kysy hintaa!
Moderni ensimmäisen kerroksen 45 m² toimistotila tyylikkäässä kiinteistössä
Pitäjänmäen Voltti on moderni ja tyylikäs sekä palveluiltaan laadukas toimistotalo Pitäjänmäen yritysalueella. Teräsrunkoinen lasinen rakennus huokuu teknologista edelläkävijyyttä ja huippuosaamista.
Helsingin Pitäjänmäessä sijaitseva Strömbergin alue on nimetty suomalaisen sähkötekniikan pioneerin Gottfrid Strömbergin mukaan. Sähkön maailma on antanut inspiraation myös Pitäjänmäen Voltille – tai lyhyemmin Voltille, jonka näyttävän julkisivun sisältä löydät modernit työtilat sekä konesalimahdollisuudet ja pihalta jykevät varavirtajärjestelmät, jotka takaavat virtaa ja tehoa työskentelyyn.
Kevan rakennuttama Voltin rakennus valmistui vuonna 1999 ja se pistettiin täysin uuteen uskoon vuonna 2020. Nyt kiinteistön 26.716 m² tarjoavat vuokralaisille niin toimivat tilat tehokkaaseen työskentelyyn kuin viihtyisät yleiset tilat monipuoliseen toimintaan. Tiloja on kuudessa kerroksessa eri kokoluokan yrityksille 45 m² - 1 800 m².
Rakennuksen palvelut kattavat kaiken neuvottelukeskuksesta aina ravintola- ja catering-palveluihin sekä kuntosaliin ja edustussaunaan. Talon ensimmäisessä kerroksessa toimii täysin uudistettu 170 asiakaspaikan lounasravintola Kuohu, jonka palvelut tarjoaa Antell Oy. Lounastarjoilun lisäksi ravintola toimittaa tarvittaessa kokoustarjoiluja ensimmäisen kerroksen neuvottelutiloihin, ylimmän kerroksen saunalle sekä tarvittaessa myös vuokralaisten omiin tiloihin.
Alueella on hyvät julkisen liikenteen palvelut. Pitäjänmäen ja Vihdintien bussilinjat sekä Valimon junaseisake mahdollistavat sujuvan kulkemisen alueelle ja raidejokerin valmistuminen parantaa liikenneyhteyksiä entisestään. Kiinteistössä on lisäksi yli 200 autopaikan pysäköintihalli ja sisäänkäynnin edustalla 24 vieraspaikkaa.
Perustiedot
Tyyppi:
Toimisto
Sopimustyyppi:
Vuokrataan
Osoite:
Hiomotie 32, 00380 Helsinki
Kaupunginosa:
Pitäjänmäki
Tilan koko
Kokonaispinta-ala:
45 m²
Rakennustiedot
Rakennusvuosi:
1999
Energialuokka:
E
Lisätiedot
Kerros:
1 / 8
Kartta
Tietoa ilmoittajasta
ScanReal Oy LKV
Näytä kaikki saman ilmoittajan kohteetOpus Business Park, Hitsaajankatu 24
00810
Helsinki




































