Uudet käyttö- ja sopimusehdot
Päivitämme käyttö- ja sopimusehtojamme. Uudet ehdot ovat voimassa 1.5.2025 alkaen. Tutustu ehtoihin
Olavintie 2 Turku
20700Tyyppi
Toimisto
Koko
350 m²
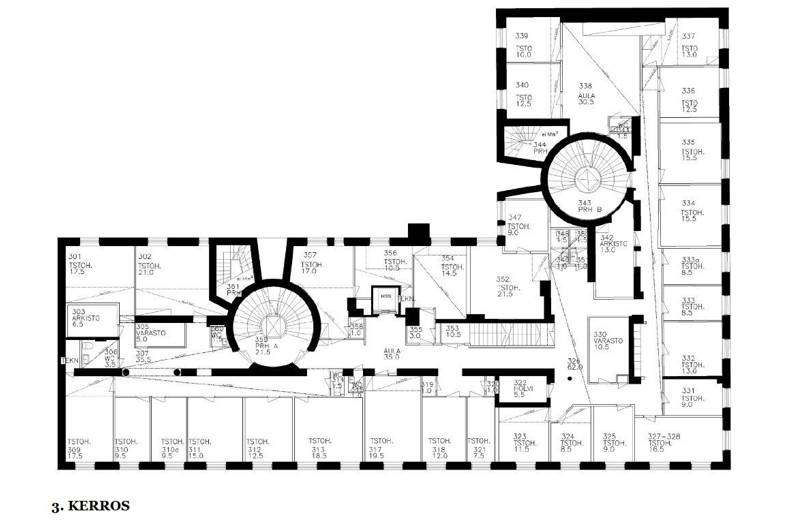
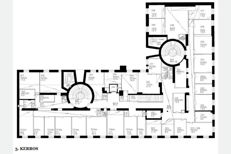
Kerros
3 / 6
Vuokra
Kysy hintaa!
Saatavilla
Heti vapaa
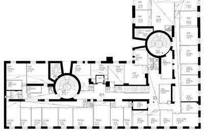
Vuokrataan Veritaksen entisestä pääkonttorista n. 350m²-700m² toimistotilaa osoitteesta Olavintie 2, joka sijaitsee aivan Aurajoen vieressä Kaskenmäen varressa.
Toimistokokonaisuus koostuu koko 3. kerroksesta ja tarvittaessa kerros voidaan myös jakaa esimerkiksi kahteen n. 350m² erilliseen kokonaisuuteen. Myös kiinteistön 4. kerroksesta on saatavilla samantapainen kokonaisuus. Tällä hetkellä tilat ovat jaettu pääosin eri huoneratkaisuin, mutta ne voidaan muokata käyttäjän tarpeiden mukaisiksi. Kiinteistössä on myös kolme erillistä hissiä, joista yksi on esteetön hissi ja kaksi muuta haitariovihissejä. Esteetön hissi sijaitsee kiinteistön keskellä ja siihen on suora käynti pääovesta. Parkkipaikkoja löytyy sekä parkkihallista että kiinteistön pihalta ja niitä on mahdollista vuokrata sopimuksen mukaan.
Tilat ovat heti vapaat ja käyttökelpoiset, mikäli kiinnostuit niin ota yhteyttä ja sovitaan kohdekäynti!
Vuokraan lisätään alv + kulut.
Lisätiedot ja yhteydenotto:
www.blanctoimitilat.fi
Toni Niskanen
+358 44 0758 171
toni.niskanen@blanckiinteisto.com
Perustiedot
Tyyppi:
Toimisto
Sopimustyyppi:
Vuokrataan
Osoite:
Olavintie 2, 20700 Turku
Lisätiedot
Saatavilla:
Heti vapaa
Kerros:
3 / 6
Kartta
Ota yhteyttä
Toni Niskanen
Osakas, toimitila-asiantuntija
Näytä puhelinnumero
Lähetä yhteydenottopyyntö
Tietoa ilmoittajasta
Blanc Toimitilat
Näytä kaikki saman ilmoittajan kohteetHenry Fordin katu 5
00150
Helsinki












