Uudet käyttö- ja sopimusehdot
Päivitämme käyttö- ja sopimusehtojamme. Uudet ehdot ovat voimassa 1.5.2025 alkaen. Tutustu ehtoihin
Ahventie 4 Espoo
02170Tyyppi
Toimisto
Koko
245 m²
Kerros
5
Vuokra
15 €/m²/kk
Saatavilla
Heti vapaa
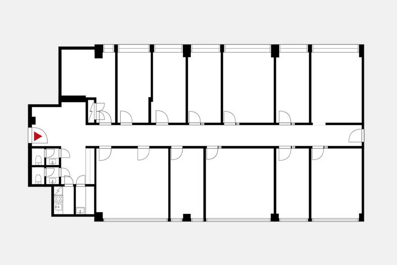
Vuokrataan viidennen kerroksen toimistotilaa Ahti Business Parkissa Haukilahdessa. Kohde käsittää useita toimistohuoneita, missä jokaisessa ikkuna, tiimityöskentelytiloja, neuvottelutilaa, sosiaalitilat ja keittiön.
Kohteessa on hyvät liiketoimintaa tukevat palvelut vuokralaiselle, kuten aulapalvelu, vuokrattavia kokous- ja neuvottelutiloja, laadukas lounasravintola sekä reilusti pysäköintitilaa. Ahti Business Parkille on myönnetty myös ympäristösertifikaatti.
Kohteen saavutettavuus on mitä mainioin, koska kohde sijaitsee Länsiväylän varressa. Omalla autolla Helsingin keskustaan 15 min ja Matinkylään Ison Omenan kauppakeskukseen n. 5 minuuttia. Pysäköintipaikkoja autohallissa ja ulkokannella. Lähin bussipysäkki on aivan talon vieressä ja Niittykummun metroasema vain kävelymatkan päässä. Kiinteistössä on myös laadukas pyöräparkki ja siistit pukuhuonetilat työmatkapyöräilijöille.
Vuokraan lisätään alv + kulut (kysy lisätietoja Toimitila-asiantuntijalta)
Lisätiedot ja yhteydenotto:
www.blanctoimitilat.fi
Harri Laisto
+358 40 536 5590
harri.laisto@blanckiinteisto.com
Perustiedot
Tyyppi:
Toimisto
Sopimustyyppi:
Vuokrataan
Osoite:
Ahventie 4, 02170 Espoo
Vuokra:
15 €/m²/kk
Lisätiedot
Saatavilla:
Heti vapaa
Kerros:
5
Ympäristö
Liikenneyhteydet:
Metroasema lähellä, sujuvat yhteydet omalla autolla ja bussipysäkki lähellä
Kartta
Ota yhteyttä
Harri Laisto
Toimitila-asiantuntija, CEO, Kaupanvahvistaja, LKV
Näytä puhelinnumero
Lähetä yhteydenottopyyntö
Tietoa ilmoittajasta
Blanc Toimitilat
Näytä kaikki saman ilmoittajan kohteetHenry Fordin katu 5
00150
Helsinki














