Uudet käyttö- ja sopimusehdot
Päivitämme käyttö- ja sopimusehtojamme. Uudet ehdot ovat voimassa 1.5.2025 alkaen. Tutustu ehtoihin
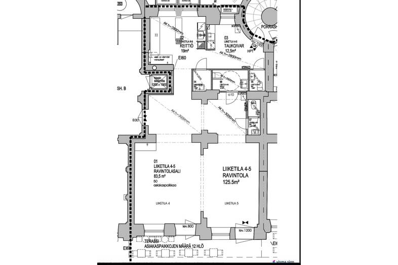
Aurakatu 3 Keskusta, Turku
20100Tyyppi
Liiketila
Koko
126 m²
Kerros
1 / 6
Vuokra
Kysy hintaa!
Saatavilla
Heti vapaa
Vuokrataan tilava ja valoisa liiketila Turun keskustassa, Aurakatu 3:ssa. Tämä 126 neliömetrin tila sijaitsee katutasossa ja tarjoaa erinomaiset puitteet monenlaisille liiketoimille.
Tilassa on korkeat huoneet, jotka luovat avaran ja ilmavan tunnelman. Tämä tekee tilasta erityisen houkuttelevan esimerkiksi myymäläksi, kahvilaksi tai toimistoksi. Keskustan keskeinen sijainti takaa hyvät kulkuyhteydet ja runsaan asiakasvirran.
Aurakatu 3:n ympäristö tarjoaa monipuoliset palvelut ja vilkkaan kaupunkielämän, mikä tekee tästä tilasta loistavan paikan yrityksellesi. Tartu tilaisuuteen ja tule tutustumaan tähän upeaan liiketilaan!
Tila sijaitsee erinnomaisela sijainnilla Turun keskustassa . Lähistöllä useita suosittuja ravintoloita.
Tilaa voidaan vuokrata kevyehkäöön ( Lämmityskeittiö ) ravintola käyttöön Mahdollisuus myös terassipaikkoihin !
TILASSA LÄMMITYSKEITTIÖ
Asiakaspaikat 50 + terassi 8
Neliöt 126
Vuokra 11 % liikevaihdosta kuitenkin vähintään 7200 + alv
ASIAKASPAIKKOJA 50 + TERASSILLA 12
TILA SOVELTUU MYÖS MONEEN ERI LIIKETILA KÄYTTÖÖN
Harvoin tarjolla !
Palvelumme on tilahakijalle maksuton !
Tiedustelut ja esittelyt joustavasti Hilla Haaparanta 0445212174, hilla.haaparanta@tsvv.fi
jouko.reijonen@tsvv.fi 0400570098
Perustiedot
Tyyppi:
Liiketila
Sopimustyyppi:
Vuokrataan
Osoite:
Aurakatu 3, 20100 Turku
Kaupunginosa:
Keskusta
Lisätiedot
Saatavilla:
Heti vapaa
Kerros:
1 / 6


































