Uudet käyttö- ja sopimusehdot
Päivitämme käyttö- ja sopimusehtojamme. Uudet ehdot ovat voimassa 1.5.2025 alkaen. Tutustu ehtoihin
Ratapihankatu 53 Turku
20100Tyyppi
Toimisto
Koko
685 m²
Kerros
2 / 5
Vuokra
9,49 €/m²/kk
Saatavilla
Vapautuu sopimuksen mukaan
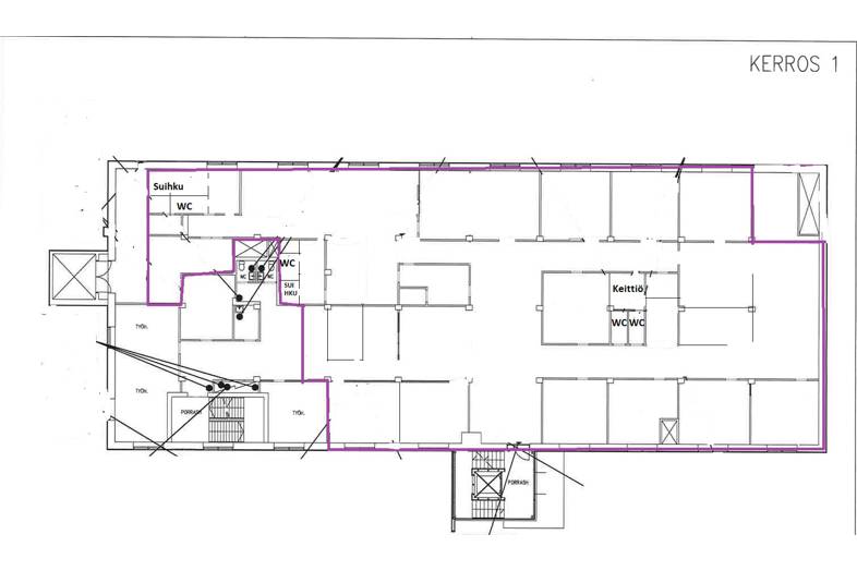
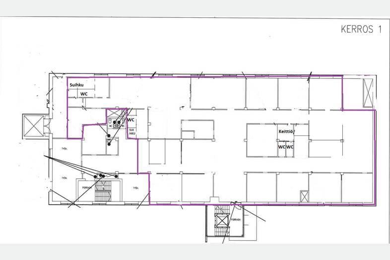
Vuokrattavana hyväkuntoista toimistotilaa Turun keskustan tuntumassa
Tilaisuus hankkia vuokrattavana ja valoisa toimistotila Turun keskustan tuntumasta! Tämä 685 neliömetrin toimisto sijaitsee Ratapihankadulla, vain lyhyen matkan päässä kaupungin vilinästä. Toimisto sijaitsee rakennuksen toisessa kerroksessa, joka tarjoaa rauhallisen ympäristön työskentelylle.
Toimistotila on erittäin avara ja tarjoaa runsaasti mahdollisuuksia erilaisiin työtilaratkaisuihin. Suuret ikkunat tuovat luonnonvaloa sisään, mikä lisää viihtyvyyttä ja parantaa työtehokkuutta. Rakennus, jossa toimisto sijaitsee, on moderni ja hyvin hoidettu, ja siinä on hissi, joka helpottaa kulkemista.
Sijainti on erinomainen, sillä Turun keskustan palvelut ovat kävelymatkan päässä. Tämä toimisto tarjoaa loistavat puitteet yrityksesi toiminnalle ja mahdollisuuden luoda inspiroiva työympäristö.
Tartu tilaisuuteen ja tule tutustumaan tähän upeaan toimistotilaan!
Vuokra sisältää autopaikkoja toimistossa työskentelevien henkilöiden lukumäärän mukaisesti.
1krs.Vuokra sisältää veden ja lämmityksen.
Vapautuu sopimuksen mukaan
Palvelumme on tilahakijoille maksuton !
Tiedustelut ja esittelyt Hilla Haaparanta, 0445212174, hilla.haaparanta@tsvv.fi
Jouko Reijonen 0400 570098 jouko.reijonen@tsvv.fi
Perustiedot
Tyyppi:
Toimisto
Sopimustyyppi:
Vuokrataan
Osoite:
Ratapihankatu 53, 20100 Turku
Vuokra:
9,49 €/m²/kk
Lisätiedot
Saatavilla:
Vapautuu sopimuksen mukaan
Kerros:
2 / 5


































