Uudet käyttö- ja sopimusehdot
Päivitämme käyttö- ja sopimusehtojamme. Uudet ehdot ovat voimassa 1.5.2025 alkaen. Tutustu ehtoihin
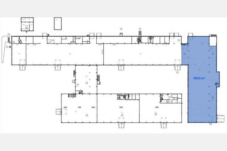
Kylänpääntie 4 Keimola, Vantaa
01750Tyyppi
Varastotila
Koko
1 950 m²
Kerros
1
Vuokra
Kysy hintaa!
Korkeaa n. 1950 m² varasto-/tuotantotilaa Hämeenlinnantien ja Kehä 3:n tuntumassa.
Hallitilan korkeus 5m-10m. Viistokatto.
Toisessa päässä hallia maantasosta iso nosto-ovi/ajo sisään, toisessa päässä lastaustasku.
Pihalla reilusti pysäköintitilaa myös raskaalle kalustolle.
Toimistoakin löytyy.
Betonirunkoinen tuotanto- ja varastokiinteistö on rakennettu vuonna 1969. Kiinteistöä on laajennettu vuonna 1982. Tavarankäsittelyä varten kohteessa on useita lastauslaitureita ja nosto-ovia. Tilat ovat muunneltavissa ja jaettavissa tarpeen mukaan.
Perustiedot
Tyyppi:
Varastotila
Sopimustyyppi:
Vuokrataan
Osoite:
Kylänpääntie 4, 01750 Vantaa
Kaupunginosa:
Keimola
Tilan koko
Kokonaispinta-ala:
1950 m²
Rakennustiedot
Energialuokka:
Ei lain edellyttämää energiatodistusta
Lisätiedot
Kerros:
1
Kartta
Tietoa ilmoittajasta
ScanReal Oy LKV
Näytä kaikki saman ilmoittajan kohteetOpus Business Park, Hitsaajankatu 24
00810
Helsinki






































