Uudet käyttö- ja sopimusehdot
Päivitämme käyttö- ja sopimusehtojamme. Uudet ehdot ovat voimassa 1.5.2025 alkaen. Tutustu ehtoihin
Silvastintie 1 Veromies, Vantaa
01510Tyyppi
Varastotila
Koko
715 m²
Vuokra
Kysy hintaa!
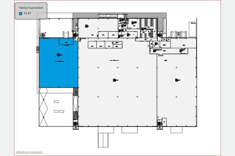
Vuokrataan varastotilaa 715,5 m2 ja toimisto 261m2
Heti vapaata varastotilaa Vantaanportista
Tilaa yhteensä 715,5 m2 (voidaan vuokrata ilman toimistoa) toimisto 261m2 Varaston lattiakantavuus 1 000 kg/m2 ja yli 5m korkea, 1 lastaustasku
Toimisto tila 261m2 pääosin avotoimistoa.
Pihalla erinomaiset pysäköintimahdollisuudet.
Kiinteistössä saatavilla erilaisia ratkaisuja, niin varaston kuin toimiston osalta.
Ratikkahankkeen varrella. Jumbon kauppakeskus kivenheiton päässä.
Aarno Toffer
aarno.toffer@toimitilapalvelu.com
044 9781393
Pentti Kaartinen
pentti.kaartinen@toimitilapalvelu.com
050 3378148
Perustiedot
Tyyppi:
Varastotila
Sopimustyyppi:
Vuokrataan
Osoite:
Silvastintie 1, 01510 Vantaa
Kaupunginosa:
Veromies
Tilan koko
Kokonaispinta-ala:
715 m²
Kartta
Ota yhteyttä
AT
Aarno Toffer
Näytä puhelinnumero
Lähetä yhteydenottopyyntö
Tietoa ilmoittajasta
Toimitilapalvelu FNTC LKV
Näytä kaikki saman ilmoittajan kohteetKäenkuja 8 A 45
00500
Helsinki








