Uudet käyttö- ja sopimusehdot
Päivitämme käyttö- ja sopimusehtojamme. Uudet ehdot ovat voimassa 1.5.2025 alkaen. Tutustu ehtoihin
Myrskyläntie 2 Oulunsalo, Oulu
90460Tyyppi
Liiketila
Koko
349 m²
Kerros
1 / 1
Myyntihinta
288 000 €
Saatavilla
Heti vapaa
Tässä on mahdollisuus!
Etsitkö tilaa korjaamolle, tuotantoon, varastointiin,.. Tilat taipuvat moneen käytttarkoitukseen ja lisääkin saa rakentaa.
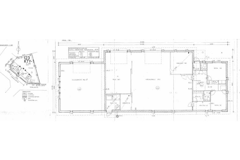
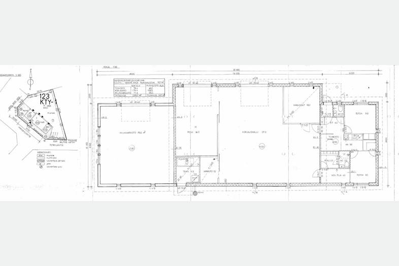
Lämmintä hallitilaa, pesuhalli, kylmä varasto, toimisto- ja sosiaalitilat.
Lämmintä tilaa 299 m2 ja kylmää tilaa 50m2
Hallin sisäkorkeus 4.50-5.50 m.
Kiinteistössä öljylämmitys, jota on tehostettu useammalla ilmaläpöpumpulla.
Hallitiloissa on koneellinen poistoilmanvaihto.
Piha-alue on asfaltoitu.
Tontin koko 1885 m2.
Rakennuksen tehokkuusluku 0,5, joten kokonaisuudessaan rakenusoikeutta 942,50 m2, josta käytetty 349m2 eli käyttämättä 593,50 m2
Korjaamohalli on kahdella nosto-ovella joiden korkeus on 4 metriä ja leveys 3 metriä.
Ison hallitilan mitat ovat leveys n. 11 m ja syvyys n. 10,3 m.
Pesuhallin oven mitat samat kuin isossa hallissa ja koko on leveys n. 4,4m ja syvyys n. 7,4 m
Mahdollisuus myös vuokrata tila!!
Tämän tilan lisäksi mahdollisuus ostaa viereinen asfaltoitu tontti(oma) 2000m2, jossa rakennusoikeutta 1000 m2. MYYTY
ja
kaupungin vuokratontilla (2602m2) olevat kaksi rakennusta 100 neliön kokoinen maalaushalli ja 238m2-kokoinen toimisto/huoltorakennus. MYYTY
tilaterveisin aarno.annola@tilahaukka.fi / 040 176 9909
Perustiedot
Tyyppi:
Liiketila
Sopimustyyppi:
Myydään
Osoite:
Myrskyläntie 2, 90460 Oulu
Kaupunginosa:
Oulunsalo
Velaton hinta:
288 000 €
Myyntihinta:
288 000 €
Rakennustiedot
Rakennusvuosi:
2000
Lisätiedot
Saatavilla:
Heti vapaa
Kerros:
1 / 1
Tietoa ilmoittajasta
Asumaan.com Oy
Näytä kaikki saman ilmoittajan kohteetVihikari 6 A
90440
KEMPELE






































































