Uudet käyttö- ja sopimusehdot
Päivitämme käyttö- ja sopimusehtojamme. Uudet ehdot ovat voimassa 1.5.2025 alkaen. Tutustu ehtoihin
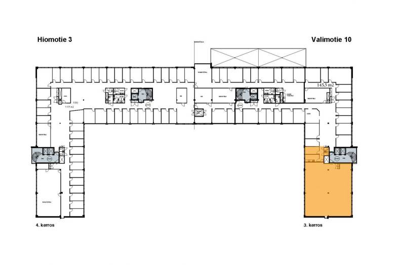
Valimotie 10 Pitäjänmäki, Helsinki
00380Tyyppi
Toimisto
Koko
268 m²
Kerros
3 / 6
Vuokra
Kysy hintaa!
Vuokrattavana 3. krs toimistotila, noin 268 m2. Tila sisältää avotoimistotilaa sekä keittiö- ja wc-tilat.
Rakennuksen edessä on bussipysäkki sekä pysäköintialue.Pääsisäänkäynnin yhteydessä katutasossa on InBliss Host-vierailijahallintajärjestelmä vieraiden vastaanottamiseen.
Suunnittelemme mahdollisen tilojen räätälöinnin ja muutostyöt asiakaskohtaisesti vuokraneuvottelujen yhteydessä.
Valimo Centerin kaikkia vuokralaisia palvelee Valimotie 13a:ssa sijaitseva aulapalvelu, jossa on myös postin vastaanotto, edelleenlähetys sekä pakettipalvelut. Samassa rakennuksessa on kiinteistön oma – vuokralaisille tarkoitettu kuntosali, jonne on pääsy kulkuavaimella klo 5-21. Katutasossa herkullisen lounaan arkipäivisin tarjoilee Ravintola Factory, jossa on myös kesäterassi. Mikäli yrityksellänne on tarvetta kokoustiloille, löytyy niitä tuntiperiaatteella vuokrattavana 2-20:lle henkilölle yhteensä viisi kappaletta Valimotie 13a ja Valimotie 10 rakennuksista.
Katso videoesittely Valimo Centeristä: https://youtu.be/W4-0X0CgEa0
Tästä kohteesta voit olla yhteydessä pääkaupunkiseudun vuokrauspäällikköömme Artoon.
Puh. 044 906 2226 / Arto Haavisto
Valimotie 10:ssä eli tutummin Sporttitalon kerroksista löytyy tiloja pienestä suureen. Kaksi alinta kerrosta ovat korkeampaa tilaa, eli ne soveltuvat erinomaisesti tuotantotilaksi. Valimotie 10:n tilat ovat yhdistettävissä Hiomotie 3:n kanssa, jolloin saadaan jopa 2 400 m²:n kokonaisuus yhteen kerrokseen.
Perustiedot
Tyyppi:
Toimisto
Sopimustyyppi:
Vuokrataan
Osoite:
Valimotie 10, 00380 Helsinki
Kaupunginosa:
Pitäjänmäki
Tilan koko
Kokonaispinta-ala:
268 m²
Lisätiedot
Kerros:
3 / 6
Muita tietoja:
Lisätietoja rakennuksesta:
- Valmistunut vuonna 1994, peruskorjattu 2017
- Pinta-ala: 13 103 m²
- Kerrosten lukumäärä: 6
- Lastauslaituri ja tavarahissi
- 3 henkilöhissiä
- Koneellinen jäähdytetty ilmanvaihto
- Turvallista kulunvalvottua tilaa
- Neuvottelutilat.
Ympäristö
Pysäköinti:
Kiinteistöissämme on pysäköintitilaa valimolaisille, lisäksi käytössä on 8 vieraspaikkaa. Valimotie 10:n pihassa sijaitsevat maksulliset pysäköintiruudut, Valimotie 13b:hen pysäköit parkkikiekolla.
Liikenneyhteydet:
Rakennus sijaitsee keskeisellä paikalla pääkaupunkiseudulla. Juna, Jokerilinja sekä bussiyhteydet ovat talon vieressä. Valimon asemalle kävelee viidessä minuutissa ja keskustaan sekä lentokentälle on alle 20 minuutin ajomatka.
Kartta
Ota yhteyttä
A(
Arto Haavisto (pk-seutu)
Näytä puhelinnumero
I(
Ilias Niemi (Varsinais-Suomi)
Näytä puhelinnumero
Tietoa ilmoittajasta
Nurmi Kiinteistöt
Näytä kaikki saman ilmoittajan kohteetJousitie 7, PL 1000
20761
Piispanristi


























