Uudet käyttö- ja sopimusehdot
Päivitämme käyttö- ja sopimusehtojamme. Uudet ehdot ovat voimassa 1.5.2025 alkaen. Tutustu ehtoihin
Porkkalankatu 13 Salmisaari, Helsinki
00180Tyyppi
Liiketila
Koko
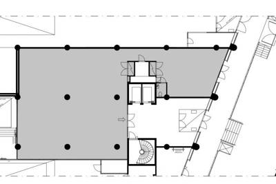
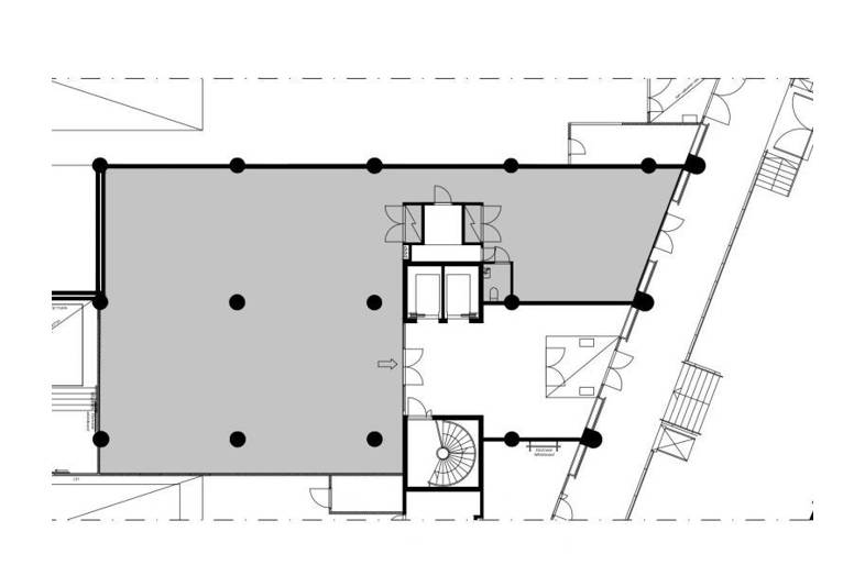
266 m²
Kerros
1
Vuokra
Kysy hintaa!
Mukautuvaa 266,5 m² showroom-/myymälätilaa Salmisaaressa
Verkkokauppa, tuotantotila, showroom tai myymälä sopivat loistavasti tilaan, jossa yhdistyvät käytännöllisyys ja rouheus.
Monipuoliset ja toimivat tilakokonaisuudet inspiroivat tekijöitään luovaan työskentelyyn.
Helsingin kantakaupungissa sijaitseva Lippa kuuluu on osa Oikeustalon kiinteistökokonaisuutta. Tunnistettavan rakennuksesta tekee sen lipan muotoinen julkisivu ja lastauslaituri, jonka kautta on aikoinaan kulkenut miljoonia litroja väkeviä ympäri Suomea.
Alun perin 1930-luvulla Salmisaarentaloksi nimetty ja Alkon pääkonttoriksi sekä tuotantotilaksi rakennettu kiinteistö on toiminut tähän päivään asti monipuolisesti erilaisten liiketoimintojen ja menestystarinoiden mahdollistajana.
Lipan sisätilat käsittävät useita tilakokonaisuuksia, jotka ovat täysin muokattavissa yrityksesi liiketoimintaa tukevaksi. Olipa yritykselläsi esimerkiksi omaa tuotantoa tai verkkokauppa, joka tarvitsee sekä suurempaa varastotilaa, lastauslaituria että myymälätilaa. Lipassa puitteet tehdään juuri yrityksellesi täydelliseksi.
Perustiedot
Tyyppi:
Liiketila
Sopimustyyppi:
Vuokrataan
Osoite:
Porkkalankatu 13, 00180 Helsinki
Kaupunginosa:
Salmisaari
Tilan koko
Kokonaispinta-ala:
266 m²
Rakennustiedot
Energialuokka:
Ei lain edellyttämää energiatodistusta
Lisätiedot
Kerros:
1
Kartta
Tietoa ilmoittajasta
ScanReal Oy LKV
Näytä kaikki saman ilmoittajan kohteetOpus Business Park, Hitsaajankatu 24
00810
Helsinki












