Uudet käyttö- ja sopimusehdot
Päivitämme käyttö- ja sopimusehtojamme. Uudet ehdot ovat voimassa 1.5.2025 alkaen. Tutustu ehtoihin
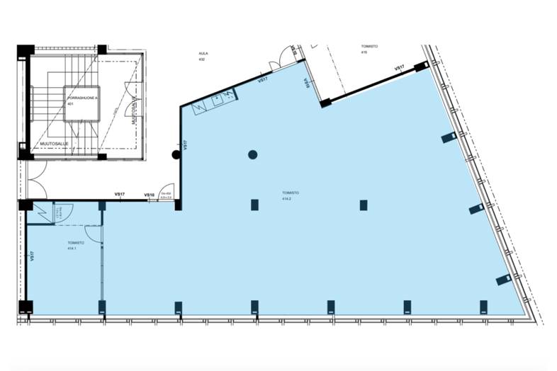
Töölönkatu 4 Töölö, Helsinki
00100Tyyppi
Toimisto
Koko
224 m²
Kerros
4
Vuokra
Kysy hintaa!
Perustiedot
Tilan koko
Rakennustiedot
Lisätiedot
Ympäristö
Kartta
Tietoa ilmoittajasta
Bureau Real Estate Finland Oy
Näytä kaikki saman ilmoittajan kohteetLars Sonckin kaari 10
02600
Espoo
Bureau Toimitilat on suomalainen toimitilavälitysyritys. Olemme tehneet tuloksellista välitystyötä jo vuodesta 2010. Toimintamme lähtökohtana ovat asiakaskeskeisyys ja ratkaisulähtöisyys. Haluamme olla nyt ja tulevaisuudessa yritysten luotettavin kumppani toimitilojen hankintaprosessissa. Olemme tilanhakijan apuna koko toimitilojen hankintaprosessin ajan aina tilatarpeen kartoituksesta sopimuksen allekirjoittamiseen asti. Palvelumme on tilanhakijalle ilmainen. Meiltä saat kaikki tarpeisiinne soveltuvat toimitilavaihtoehdot yhdellä yhteydenotolla.




































































