Uudet käyttö- ja sopimusehdot
Päivitämme käyttö- ja sopimusehtojamme. Uudet ehdot ovat voimassa 1.5.2025 alkaen. Tutustu ehtoihin
Olavintie 2 Keskusta, TURKU
20100Tyyppi
Toimisto
Koko
700 m²
Kerros
3 / 7
Vuokra
Kysy hintaa!
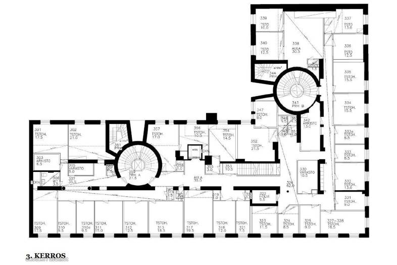
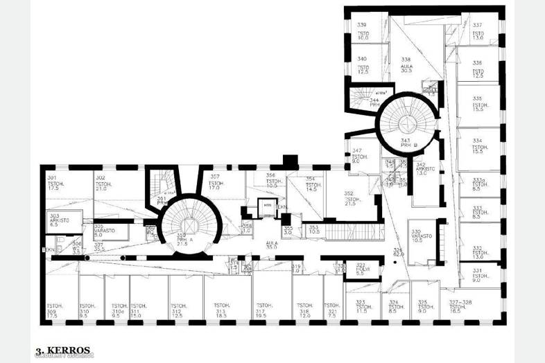
Vuokrataan toimistotilaa n. 700m²
Tilat 3. kerroksesta ja tarvittaessa kerros voidaan myös jakaa esimerkiksi kahteen n. 350m² osaan. Kolme erillistä hissiä, joista yksi on esteetön hissi . Esteetön hissi sijaitsee kiinteistön keskellä ja siihen on suora käynti pääovesta.Myös parkkipaikkoja vuokrattavissa parkkihallista sekä kiinteistön pihalta.
Tiedustelut ja esittelyt Jouko Reijonen 0400 570098 jouko.reijonen@tsvv.fi
Perustiedot
Tyyppi:
Toimisto
Sopimustyyppi:
Vuokrataan
Osoite:
Olavintie 2, 20100 TURKU
Kaupunginosa:
Keskusta
Lisätiedot
Kerros:
3 / 7










