Uudet käyttö- ja sopimusehdot
Päivitämme käyttö- ja sopimusehtojamme. Uudet ehdot ovat voimassa 1.5.2025 alkaen. Tutustu ehtoihin
Kiinteistö Oy Turun Pakkarinpuisto sijaitsee komealla paikalla Veistämönaukiolla Aurajoen suunnalla. Vuonna 1996 valmistunut kiinteistö tunnettiin aiemmin nimellä WTC Turku. Kahdesta toimistotornista koostuva kohde tarjoaa modernit, mutta arvokkaat tilat ja palvelut niin isolle kuin pienellekin käyttäjälle.
Tilava toimistotila Turun keskustassa
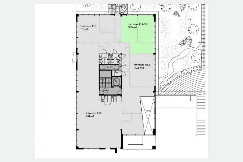
Etsitkö uutta toimistotilaa Turun keskustasta? Veistämönaukio 1-3 tarjoaa erinomaisen mahdollisuuden yrityksellesi. Tämä 15 huoneen toimisto sijaitsee keskeisellä paikalla, josta on hyvät kulkuyhteydet kaikkialle kaupunkiin.
Toimistotila on avara ja tarjoaa runsaasti tilaa erilaisille työskentelyratkaisuille. Suuret ikkunat tuovat luonnonvaloa sisään ja luovat miellyttävän työympäristön. Tilat soveltuvat hyvin erilaisiin liiketoiminnan tarpeisiin, olipa kyseessä pienempi yritys tai suurempi organisaatio.
Veistämönaukio sijaitsee Turun vilkkaassa keskustassa, jossa kaikki palvelut ovat käden ulottuvilla. Lähistöltä löytyy monipuoliset ravintolat, kahvilat ja kaupat, jotka tekevät lounastauoista ja asiakastapaamisista vaivattomia.
Tartu tilaisuuteen ja tule tutustumaan tähän upeaan toimistotilaan. Tämä on loistava mahdollisuus sijoittaa yrityksesi Turun sydämeen!
VUOKRATTAVANA TOIMISTOT :
19,0 m² Heti vapaa
40,5 m² 1.7.2025
51,0 m² Heti vapaa
56,5 m² Heti vapaa
58,5 m² Heti vapaa
60,0 m² Heti vapaa
97,5 m² 1.5.2025
174,9m² 1.5.2025
424,0m² 1.7.2025
473,0m² 1.7.2025
Talossa on aulapalvelu ja henkilöstöravintola sekä yhteiskäytössä olevia neuvottelutiloja.
Oma pysäköintihalli ja hyvät julkiset liikenneyhteydet takaavat helpon pääsyn kiinteistöön.
Palvelumme on maksuton ja etsimme juuri Teille sopivan tilan laajasta tilavalikoimastamme.
Tiedustelut ja esittelyt Jouko Reijonen 0400 570098 jouko.reijonen@tsvv.fi
Perustiedot
Tyyppi:
Toimisto
Sopimustyyppi:
Vuokrataan
Osoite:
Veistämönaukio 1-3, 20100 Turku
Kaupunginosa:
Keskusta


































