Uudet käyttö- ja sopimusehdot
Päivitämme käyttö- ja sopimusehtojamme. Uudet ehdot ovat voimassa 1.5.2025 alkaen. Tutustu ehtoihin
Kaitilantie 30 Orimattila
16300Tyyppi
Tuotantotila
Koko
2 828 m²
Vuokra
Kysy hintaa!
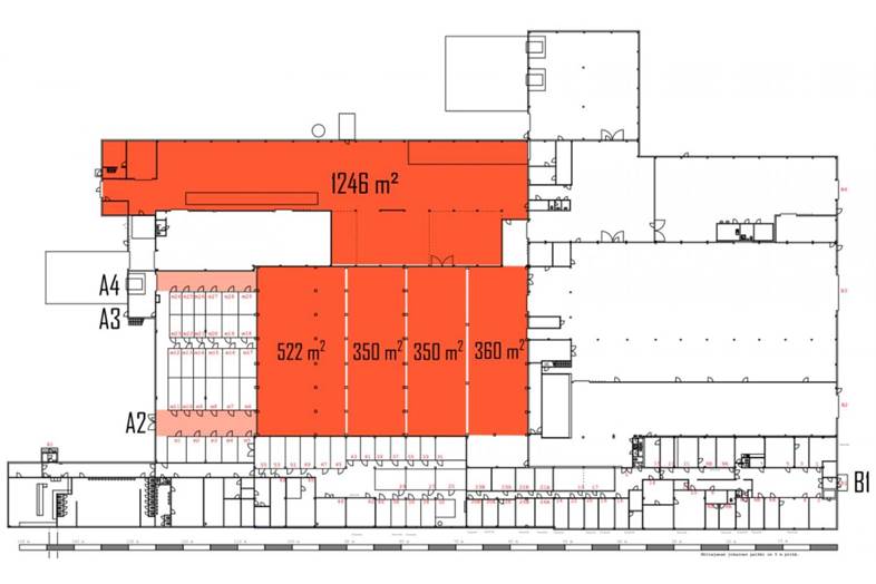
Vuokrataan Orimattilasta katutason 2 828 m² tuotanto- tai varastotila.
Tilasta 1 332 m² on puolilämmintä tilaa. Sinne on iso nosto-ovi (aukko n. L 3,5 m x K 4,0 m), joka mahdollistaa sisäänajon varastohalliin isommallakin kalustolla. Tila on kauttaaltaan suojattu sprinklerjärjestelmällä.
Lämmintä tilaa on 1 580 m². Tilaan on lastauslaituri yhteys sekä suoraan sisäänajo mahdollisuus. Korkeus on n. 7 m.
Kysy rohkeasti lisätietoja ja sovitaan käynti kohteella jo tänään!
Perustiedot
Tyyppi:
Tuotantotila, Varastotila
Sopimustyyppi:
Vuokrataan
Osoite:
Kaitilantie 30, 16300 Orimattila
Tilan koko
Kokonaispinta-ala:
2828 m²
Tilan jakautuminen tilatyyppien mukaan
| Tilatyypit | Min m² | Max m² | €/m²/kk |
|---|---|---|---|
| Tuotantotila | 2 828 | ||
| Varastotila | 2 828 |
Rakennustiedot
Kiinteistön nimi:
Kaitilantie 30
Kartta
Tietoa ilmoittajasta
Hausala Oy
Näytä kaikki saman ilmoittajan kohteetErkkilänkatu 11
33100
TAMPERE










