Uudet käyttö- ja sopimusehdot
Päivitämme käyttö- ja sopimusehtojamme. Uudet ehdot ovat voimassa 1.5.2025 alkaen. Tutustu ehtoihin
Neilikkatie 4 Tikkurila, Vantaa
01300Tyyppi
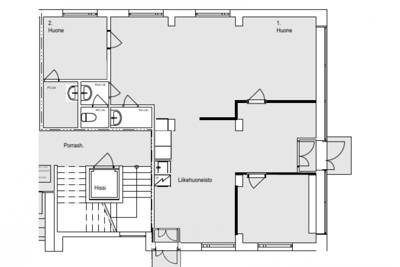
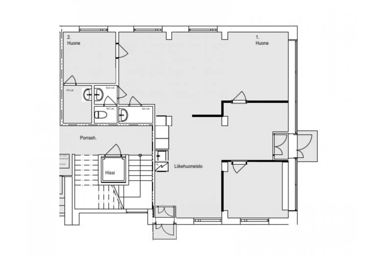
Liiketila
Koko
93 m²
Kerros
1
Vuokra
Kysy hintaa!
Perustiedot
Tilan koko
Rakennustiedot
Lisätiedot
Kartta
Tietoa ilmoittajasta

PL 1
00098
VARMA
Varma on yksi Suomen suurimmista yksityisistä kiinteistösijoittajista. Olemme luotettava vuokranantaja ja yhteistyökumppani. Luomme vuokralaisillemme edellytykset menestyksekkääseen liiketoimintaan pitämällä kiinteistöt kunnossa ja vastaamalla vuokralaisten muuttuviin tarpeisiin. Toimitilamarkkinoilla tarvitaan yhä joustavampia työtilaratkaisuja ja viihtyvyyteen kiinnitetään yhä enemmän huomiota. Kun suunnitellaan uusia toimitiloja tai modernisoidaan kiinteistöjä, haluamme olla mukana varmistamassa, että tila luo puitteet käyttäjien ja yritysten välisiin kohtaamisiin, työn joustavaan tekemiseen ja uuden luomiseen. Varmalla on toimitilakiinteistöjä eri puolilla Suomea. Tutustu vuokrauskohteisiimme ja ota rohkeasti yhteyttä!


















































