Uudet käyttö- ja sopimusehdot
Päivitämme käyttö- ja sopimusehtojamme. Uudet ehdot ovat voimassa 1.5.2025 alkaen. Tutustu ehtoihin
Etu-Hankkionkatu 1, Pajavuokraajat Hankkio, Tampere
33700Tyyppi
Tuotantotila
Koko
255 m²
Vuokra
Kysy hintaa!
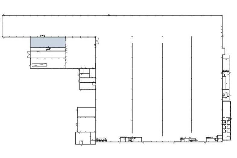
Vuokrataan Tampereen Hankkiosta ensimmäisen kerroksen 255 m² varasto- / tuotantotila.
Oma erillinen hallitila, entinen hiekkapuhaltamo. Vaatii lattian kunnostamisen ennen käyttöönottoa. Lastausovi maantasossa, erillisiä kaappeja vuokrattavissa sosiaalitiloista. Tilan läheisyydessä toimisto- ja sosiaalitilat.
Kysy rohkeasti lisätietoja ja sovitaan käynti kohteella jo tänään!
Perustiedot
Tyyppi:
Tuotantotila, Varastotila
Sopimustyyppi:
Vuokrataan
Osoite:
Etu-Hankkionkatu 1, Pajavuokraajat, 33700 Tampere
Kaupunginosa:
Hankkio
Tilan koko
Kokonaispinta-ala:
255 m²
Tilan jakautuminen tilatyyppien mukaan
| Tilatyypit | Min m² | Max m² | €/m²/kk |
|---|---|---|---|
| Tuotantotila | 255 | ||
| Varastotila | 255 |
Rakennustiedot
Kiinteistön nimi:
Etu-Hankkionkatu 1, Pajavuokraajat
Rakennusvuosi:
1968
Kartta
Tietoa ilmoittajasta
Hausala Oy
Näytä kaikki saman ilmoittajan kohteetErkkilänkatu 11
33100
TAMPERE












