Uudet käyttö- ja sopimusehdot
Päivitämme käyttö- ja sopimusehtojamme. Uudet ehdot ovat voimassa 1.5.2025 alkaen. Tutustu ehtoihin
Linnankatu 50-52 Länsiranta, Turku
20100Tyyppi
Toimisto
Koko
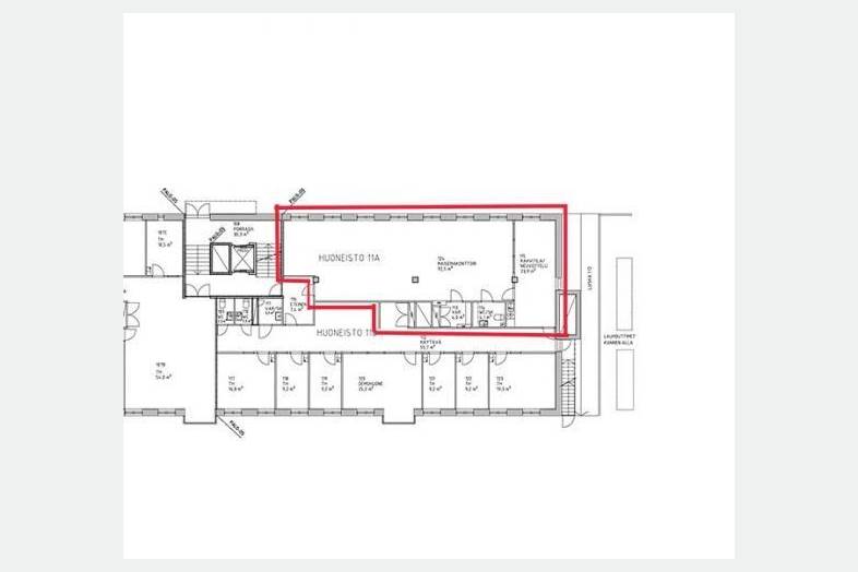
137 m²
Vuokra
Kysy hintaa!
Vuokrataan Turun Länsirannasta ensimmäisen kerroksen 137 m² toimistotila. Tila koostuu erikokoisista sermein rajatuista huoneista. Tilasta löytyy oma keittiö ja wc. Tilat helposti muokattavissa vastaamaan asiakkaan toiveita.
Kaakelinna sijaitsee Aurajoen varrella Turun keskusta-alueella ja on valmistunut vuonna 2002. Kiinteistön tilat ovat jäähdytettyjä.
Pysäköintitilaa löytyy rakennuksen kellaritiloista sekä kadunvarsilta.
Saavutettavuus on erinomainen joukkoliikenteellä, pyörällä ja henkilöautolla. Etäisyys lähimmälle paikallisliikenteen bussipysäkille on noin 50 metriä.
Kysy rohkeasti lisätietoja ja sovitaan käynti kohteella jo tänään!
Perustiedot
Tyyppi:
Toimisto
Sopimustyyppi:
Vuokrataan
Osoite:
Linnankatu 50-52, 20100 Turku
Kaupunginosa:
Länsiranta
Tilan koko
Kokonaispinta-ala:
137 m²
Rakennustiedot
Kiinteistön nimi:
Turun Kaakelinna
Rakennusvuosi:
2002
Tietoa ilmoittajasta
Hausala Oy
Näytä kaikki saman ilmoittajan kohteetErkkilänkatu 11
33100
TAMPERE






















