Uudet käyttö- ja sopimusehdot
Päivitämme käyttö- ja sopimusehtojamme. Uudet ehdot ovat voimassa 1.5.2025 alkaen. Tutustu ehtoihin
Pursimiehenkatu 29-31 Punavuori, Helsinki
00150Tyyppi
Toimisto
Koko
114 m²
Kerros
2 / 6
Vuokra
Kysy hintaa!
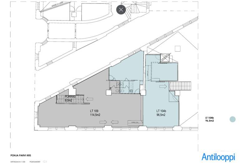
Ainutlaatuinen 114,5 m² toisen kerroksen toimitila tunnelmallisessa Merikorttelissa.
114,5 m² toisen kerroksen tilaan on omat portaat suoraan kadulta ja sijaitsee Bob's Laundryn yläkerrassa. Tilaan etsitään sopivaa parturi-kampaamoa tai showroomia. Tule vaikuttamaan pohjaratkaisuun ja materiaaleihin.
Tunnelmallinen Merikortteli on ainutlaatuinen kiinteistö merellisen Punavuoren sydämessä.
Ilmoituksen sisäkuvat ovat yleiskuvia kiinteistön eri tiloista.
Talossa toimii monipuolinen joukko yrityksiä kahvipaahtimosta mainostoimistoihin, jotka yhdessä muodostavat ainutlaatuisen ja eloisan työyhteisön.
Merikorttelin selkeä rakenne tekee erilaisten pohjaratkaisujen suunnittelusta helppoa ja joustavaa. Avarien tilojen huonekorkeus on poikkeuksellisen suuri. Isoista, luonnonvaloa tulvivista ikkunoista voi ihailla upeita ympäröiviä maisemia: kauniita historiallisia rakennuksia ja Punavuoren eloisaa katukuvaa. Lähistöllä on paljon ravintoloita ja Hietalahden kauppahalli löytyy nurkan takaa. Punavuoreen on hyvät kulkuyhteydet ja Baana sijaitsee ihan vieressä. Merenranta on vain kivenheiton päässä.
Perustiedot
Tyyppi:
Toimisto
Sopimustyyppi:
Vuokrataan
Osoite:
Pursimiehenkatu 29-31, 00150 Helsinki
Kaupunginosa:
Punavuori
Tilan koko
Kokonaispinta-ala:
114 m²
Rakennustiedot
Rakennusvuosi:
1920
Energialuokka:
Ei lain edellyttämää energiatodistusta
Lisätiedot
Kerros:
2 / 6
Ympäristö
Pysäköinti:
Pysäköintitilaa tarjolla korttelin omassa parkkihallissa sekä läheisissä pysäköintilaitoksissa.
Lähipalvelut:
Keväällä 2022 palvelutarjonta laajentui italialaisesta pizzakulttuurista elävän Forzan ja leipomo-ravintola Levainin myötä. Korttelissa on myös tunnelmallinen elokuvateatteri Riviera. Viime vuosina valtavasti kehittyneellä Telakkakadulla sijaitsevasta Merikorttelista löytyy jo entuudestaan muun muassa kahvipaahtimo-kahvila Kaffa Roastery ja lounasravintola-kahvila Moko Market Café. Toistakymmentä ravintolaa tai kahvilaa 500 metrin säteellä kiinteistöstä.
Liikenneyhteydet:
Metroasema 1,5 km, Raitiovaunupysäkki 100 m, Bussipysäkki 200 m, Juna-asema 1,9 km, Lentoasema 23,1 km
Kartta
Tietoa ilmoittajasta
ScanReal Oy LKV
Näytä kaikki saman ilmoittajan kohteetOpus Business Park, Hitsaajankatu 24
00810
Helsinki






















