Uudet käyttö- ja sopimusehdot
Päivitämme käyttö- ja sopimusehtojamme. Uudet ehdot ovat voimassa 1.5.2025 alkaen. Tutustu ehtoihin
Sarankulmankatu 12 Sarankulma, Tampere
33900Tyyppi
Toimisto
Koko
400 - 1 000 m²
Vuokra
Kysy hintaa!
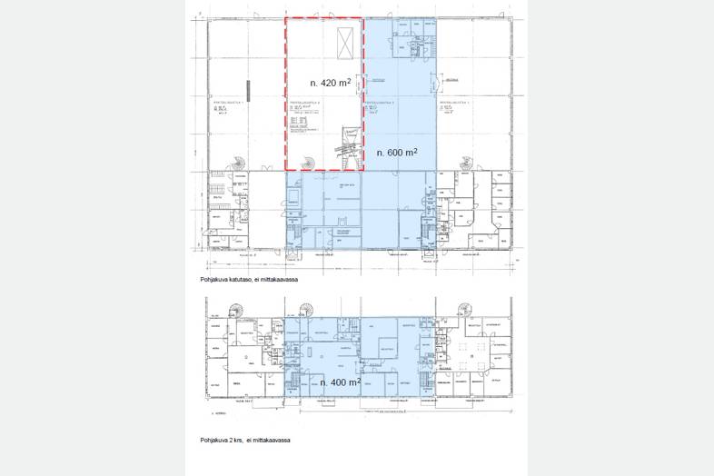
Vuokrataan noin 400 + 600 m2 toimisto- ja hallitilaa Sarankulmasta.
Noin 7 m korkeaa hallitilaa noin 400 m2 ja matalampaa tilaa noin 200 m2. Lisäksi toimistoa noin 400 m2.
Vapautuu 1.10.2025.
Voidaan yhdistää viereisen noin 420 m hallitilan kanssa.
Hyvät julkiset liikenneyhteydet.
Vuokra 10 euroa/m2/kk + alv.
Vuokralainen tekee oman sähkösopimuksensa.
Lämpö ja vesi mitataan.
Esite liitetiedostona.
Kysy lisää!
Perustiedot
Tyyppi:
Toimisto, Varastotila
Sopimustyyppi:
Vuokrataan
Osoite:
Sarankulmankatu 12, 33900 Tampere
Kaupunginosa:
Sarankulma
Tilan koko
Kokonaispinta-ala:
1000 m²
Tilan jakautuminen tilatyyppien mukaan
| Tilatyypit | Min m² | Max m² | €/m²/kk |
|---|---|---|---|
| Toimisto | 400 | 1 000 | |
| Varastotila | 400 | 1 000 |
Dokumentit
Tietoa ilmoittajasta

Catella Property Oy, Tampere
Näytä kaikki saman ilmoittajan kohteetHämeenkatu 13 b
33100
TAMPERE





